logo

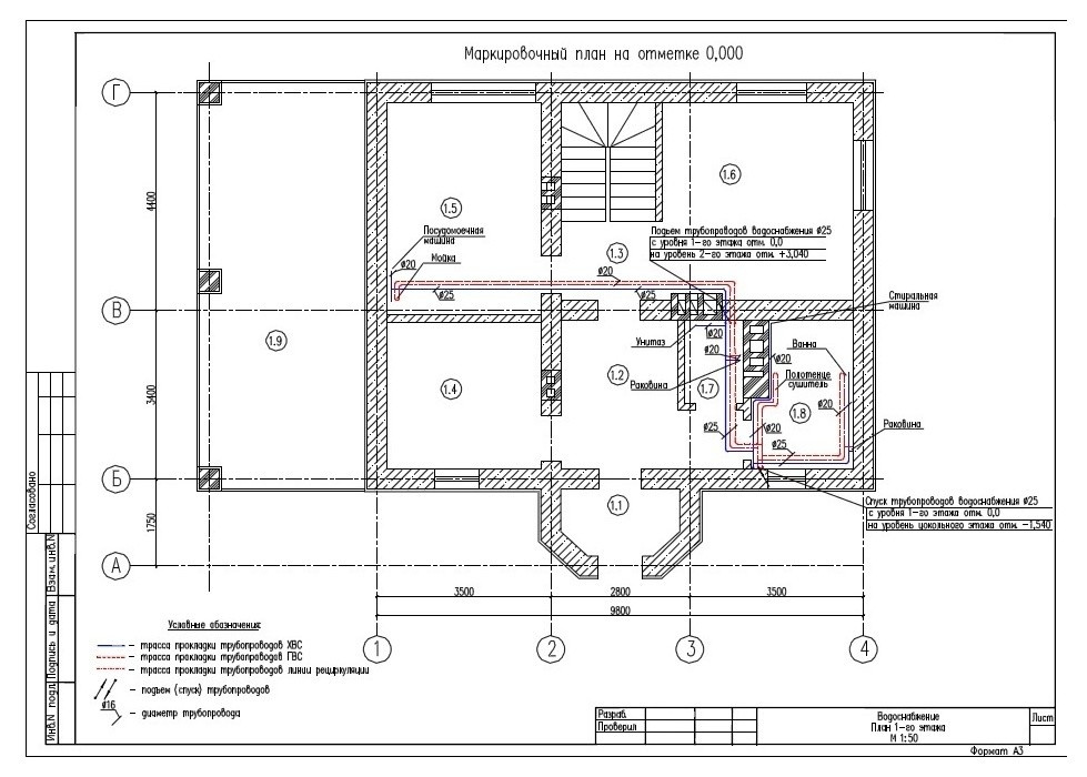
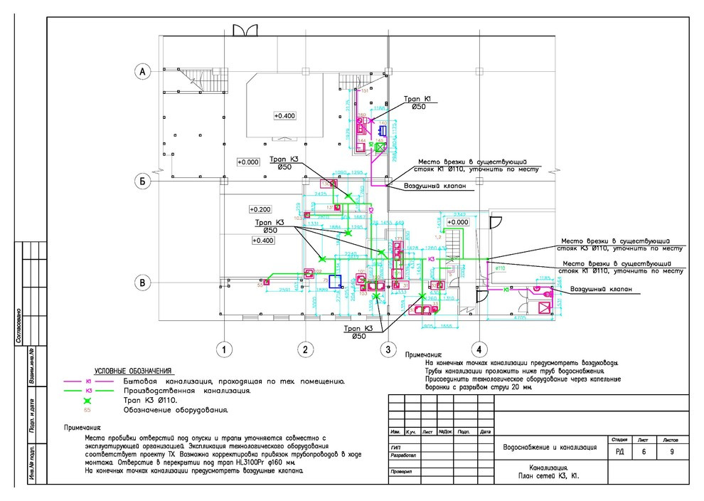
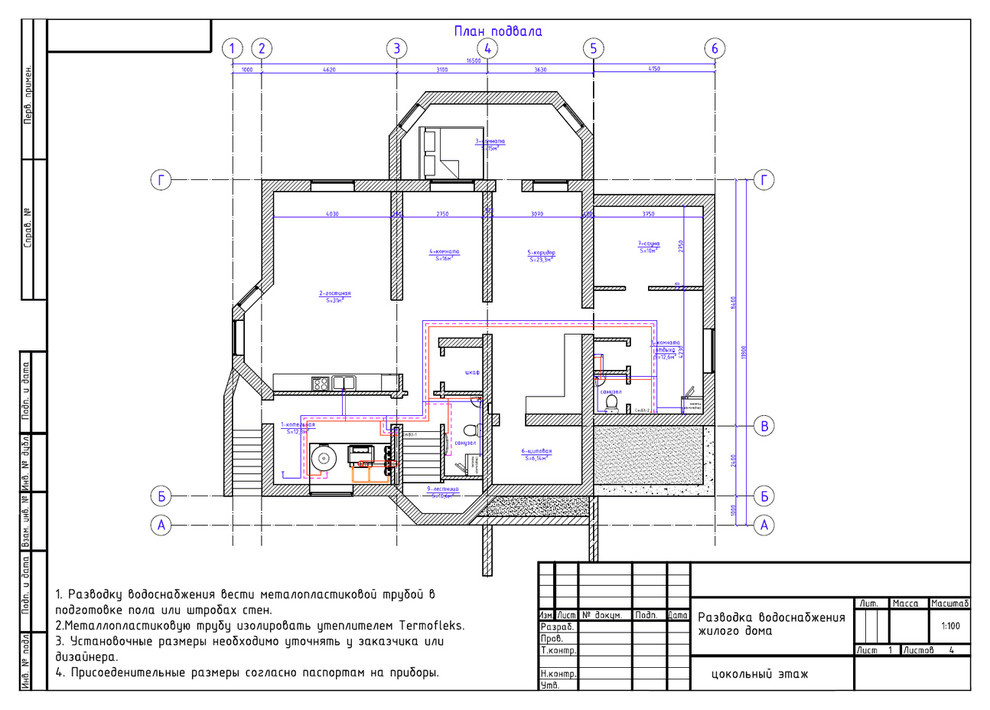
Проект водоснабжения (ВК1)

Проект водоснабжения обычно выполняется совместно с проектированием системы канализации.

Год реализации: 2017
Стоимость проектирования: 34 999
photo

8 фотографий

Проект водоснабжения
Проект водоснабжения
Проект водоснабжения
Проект водоснабжения
Проект водоснабжения
Проект водоснабжения
Проект водоснабжения
Проект водоснабжения
Проект водоснабжения
Проект водоснабжения
Проект водоснабжения
Проект водоснабжения
Проект водоснабжения
Проект водоснабжения
Проект водоснабжения
Проект водоснабжения