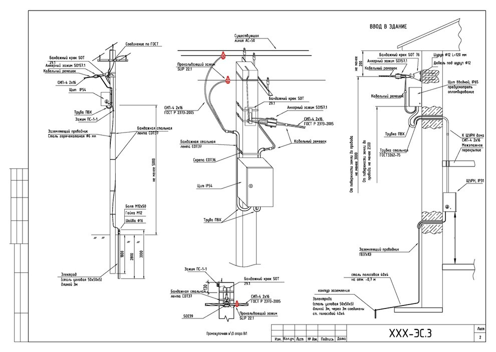
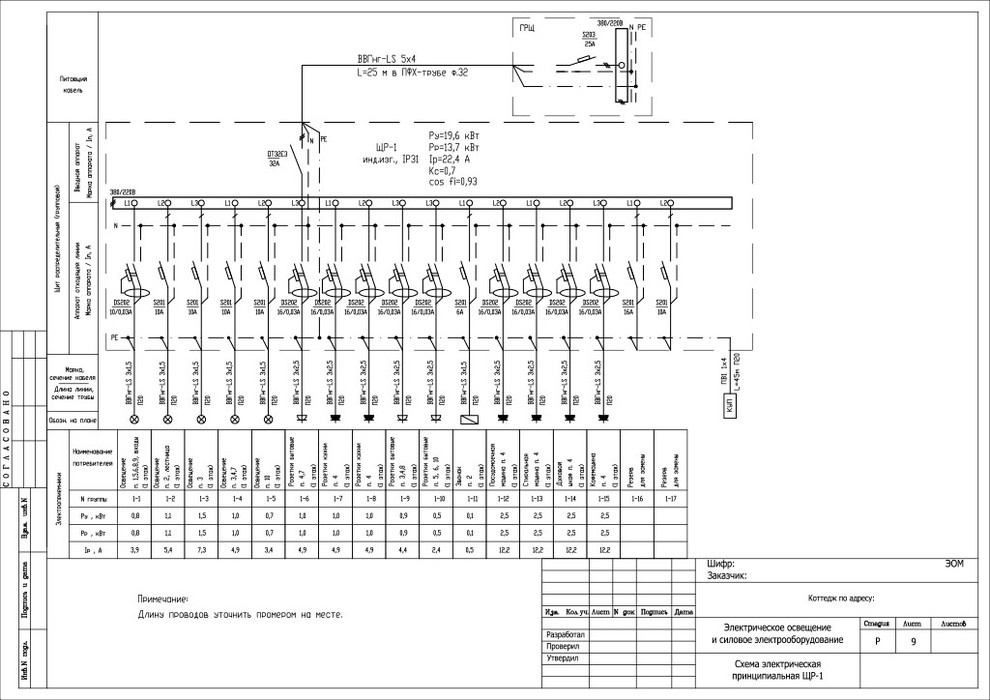
Профиль пользователяПроект электроснабжения и освещения (ЭОМ)Проект электроснабжения коттеджаГод реализации: 20186 фотографийПоделитьсяСохранитьПроект электроснабжения и освещения (ЭОМ)ПоделитьсяСохранитьПроект электроснабжения и освещения (ЭОМ)ПоделитьсяСохранитьПроект электроснабжения и освещения (ЭОМ)ПоделитьсяСохранитьПроект электроснабжения и освещения (ЭОМ)ПоделитьсяСохранитьПроект электроснабжения и освещения (ЭОМ)ПоделитьсяСохранитьПроект электроснабжения и освещения (ЭОМ)ПоделитьсяСохранить