Проект современного дома с баней и гаражом в Подмосковье 2022
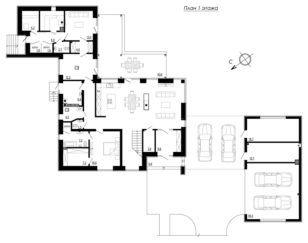
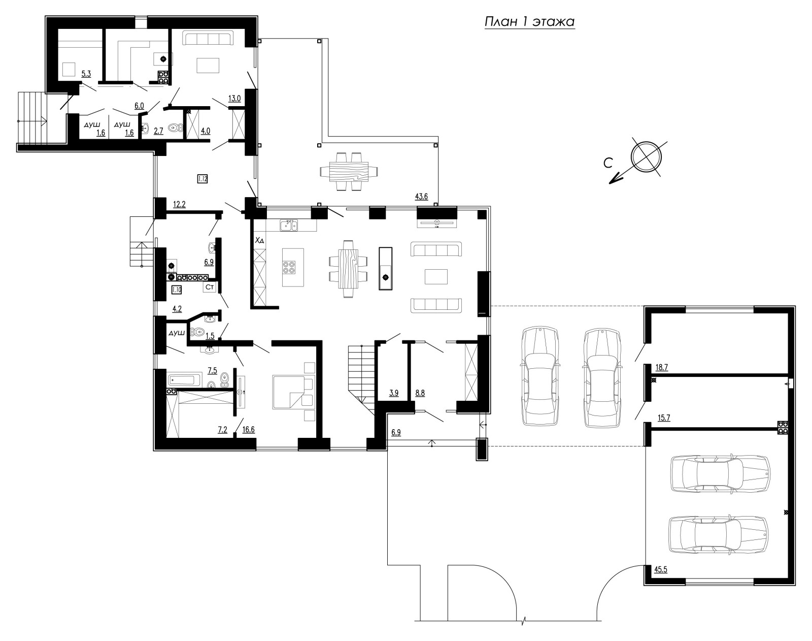
Проект загородного частного дома, выполненный в современном стиле. Регион строительства - Московская область. Дом представляет из себя комплекс из нескольких строений: жилой двухэтажный дом с прилегающей одноэтажной баней, террасой, гаражом и навесом для автомобилей. . Дом рассчитан на проживания семьи из 2 поколений (6 человек). На первом этаже расположена общественная единая зона гостиной-кухни-столовой с двусторонним камном и выходом на террасу. Над столовой организован второй свет. В доме запроектированы две мастер-спальни: одна из них с собственным сан.узлом и гардеробом, в которой будут проживать родители хозяев дома, находится на 1 этаже. А для самих хозяев спальня (тоже с собственным сан.узлом и гардеробом) находится на втором этаже. Также на 2м этаже расположены 2 детские комнаты и кабинет. . Со стороны террасы к дому примыкает одноэтажнапя SPA-зона. В ней расположены: спорт.зал, русская парная и финская сауна, помывочная и комната отдыха. Из спорт.зала и комнаты отдыха организован выход на террасу. Над террасой устроена пергола с поворотными ламелями. Это сделано для того, чтобы защитить помещения 1 этажа от летнего солнца (поскольку эта сторона дома выходит на южную сторону). Ламели можно автоматически открывать и закрывать, меняя угол их наклона, что позволяет регулировать количество проходящего солнечного света. В закрытом состоянии лемели образуют водонероницаемую кровлю. В каркас перголы встроена волосточная система. . Для защиты от солнца комнат 2 этажа сделан большой вынос кровли (шириной 1,5 м). . Сос тороны въезда на участок расположен гараж на 2 автомобиля. К нему примыкают кладовая для садового инветаря, в которой также расположен генератор на случай отключения электроэнергии. За неё находится мастерская. . Между домом и гаражом расположена крытая стоянка для 2 автомобилей. . Кровля плоская неэксплуатируемая, хотя при желании её можно использовать, чтобы загарать. . Фасад дома имеет отделку из комбинации различных материалов для создания контраста цветов и текстур. Основной материал - вент.фасад из керамогранита цвета слоновой кости. Цоколь и крыльцо отделаны также керамогранитом тёмного цвета. Верхняя часть фасада, а также подшивка выносов кровли и навеса над автостиоянкой отделана вент.фасадом из термированного планкена из лиственницы. Также на фасаде присутствуют встаки из алюминиевых реек с текстурой дерева. Парапет кровли закрывает вент.фасад из панелей алюкобонда. Их цвет такой же, как и цвет рам окон и дверей - тёмно серый (антрацит). . Общая площадь: 430 м.кв. . Высота 1 этажа: 3 м. . Высота 2 этажа: 2,8 м. . Цоколь/подвал: нет. . Конструктивная схема: несущий ж/б монолитный каркас. . Фундамент: монолитная ж/б плита. . Наружные стены: керамические блоки. . Перекрытия: монолитная ж/б плита. . Кровля: плоская с гидроизоляционным покрытием из полиуретановой мастики Hyperdesmo . . Отделка фасада и цоколя: керамогранит, планкен, панели алюкобонд, алюминиевые рейки с текстурой дерева.
7 фотографий








