logo

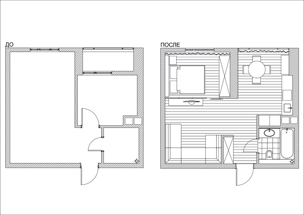
Проект однокомнатной квартиры

Год реализации: 2017
photo

11 фотографий

спальня, шкаф
спальня, шкаф
Проект однокомнатной квартиры
Проект однокомнатной квартиры
кухня современная классика
кухня современная классика
кухня современная классика
кухня современная классика
гостиная
гостиная
спальня
спальня
спальня
спальня
гостиная
гостиная
кухня современная классика
кухня современная классика
гостиная
гостиная
гостиная
гостиная
Фоновое изображение профиля Лидия Минеева
Фото профиля Лидия Минеева

Лидия Минеева

Дизайнеры интерьера