logo
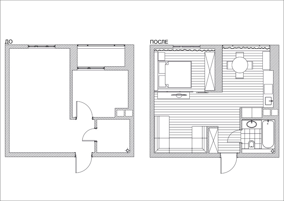
Проект однокомнатной квартиры

Другие фотографии в проекте Проект однокомнатной квартиры

Вопросы к фото 0

Задайте вопрос

Вам ответят эксперты. Пришлем уведомление, когда вам ответят

Новосибирск