Проект: Квартира в ЖК "Современник"
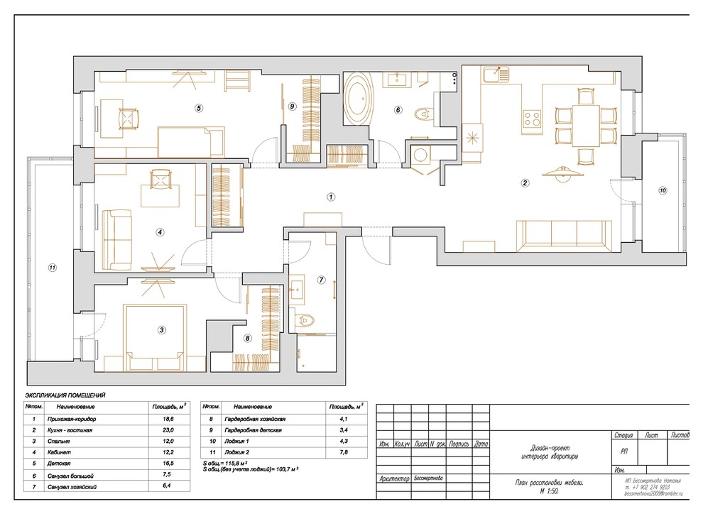
Квартира для семейной пары с дочкой-малышкой. Пожелания хозяев квартиры были видеть современный монохромный интерьер, наполненный светом и воздухом. Белый цвет был несомненным фаворитом на всем протяжении работы над проектом: глянцевые фасады кухни Nobilia, гипсовые панели Artpole, пробовое покрытие в спальне и детской, кожаные стулья Catallan Italia, межкомнатные двери Premio - все выполнено в сияющем белом... Исключением стал лишь кабинет для главы семьи с декоративным покрытием цвета графита и темной корпусной мебелью Mr. Doors.
Год реализации: 2016
Стоимость проектирования: 135 000 ₽
г. Самара
17 фотографий

















