Проект квартир "СКАНДИ" 106 м2
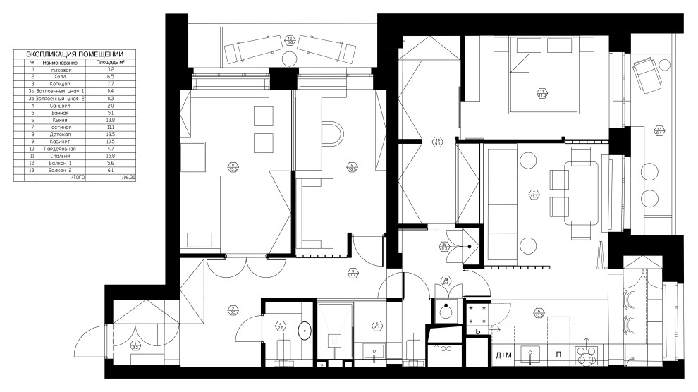
. Проект квартиры 106 м2 . Светлое и просторное, пространство квартиры, для молодой семьи с ребенком. Перетекающее планировка, наполненная воздухом и светом. . Автор Александра Журавлева . Соавтор Волова Татьяна . Визуализация Александра Журавлева
Год реализации: 2022
Стоимость проектирования: 525 000 ₽
г. Москва, Воротниковский переулок, Центральный административный округ
17 фотографий


















