Проект кофейни "Каштан"
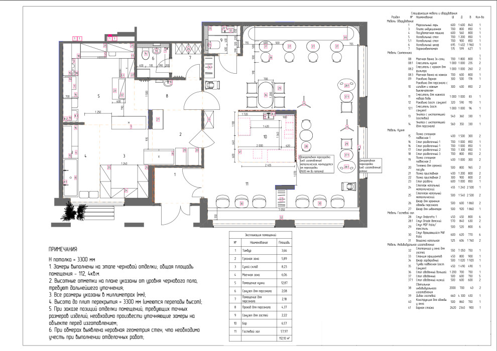
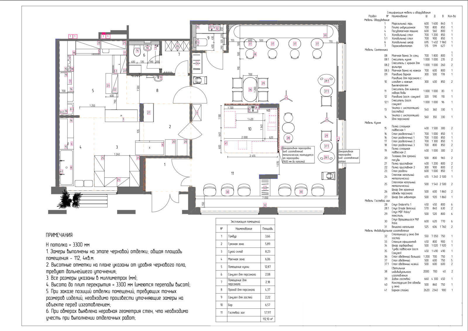
Пространство расположено на 1м этаже жилого многоквартирного дома, общая площадь - 112 квадратных метров. . Проект кофейни "Каштан" выполнен в стиле фьюжн. За основу концепции взят образ турецкой кофейни. Каштан - как знак тепла и южного гостеприимства. Кофейня рассчитана на 24 посадочных места. Целевая аудитория: мамы с детьми, жители комплекса, а также гости ЖК DOK, г. Тюмень. . Тёплая цветовая гамма, а также стилизованный орнамент и повторяющиеся элементы композиции не дадут заскучать даже самым маленьким посетителям.
Год реализации: 2022
Стоимость проектирования: 135 000 ₽
г. Тюмень
12 фотографий













