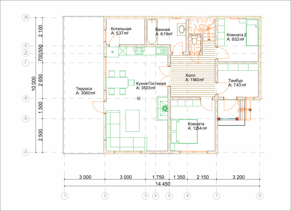
Профиль пользователяПроект каркасного дома 209 м2 - 2 этажаГод реализации: 2017Стоимость проектирования: 34 999 ₽3 фотографииПоделитьсяСохранитьПроект каркасного дома 209 м2 - 2 этажаПоделитьсяСохранитьПроект каркасного дома 209 м2 - 2 этажаПоделитьсяСохранитьПроект каркасного дома 209 м2 - 2 этажаПоделитьсяСохранить