
Архитекторы
0
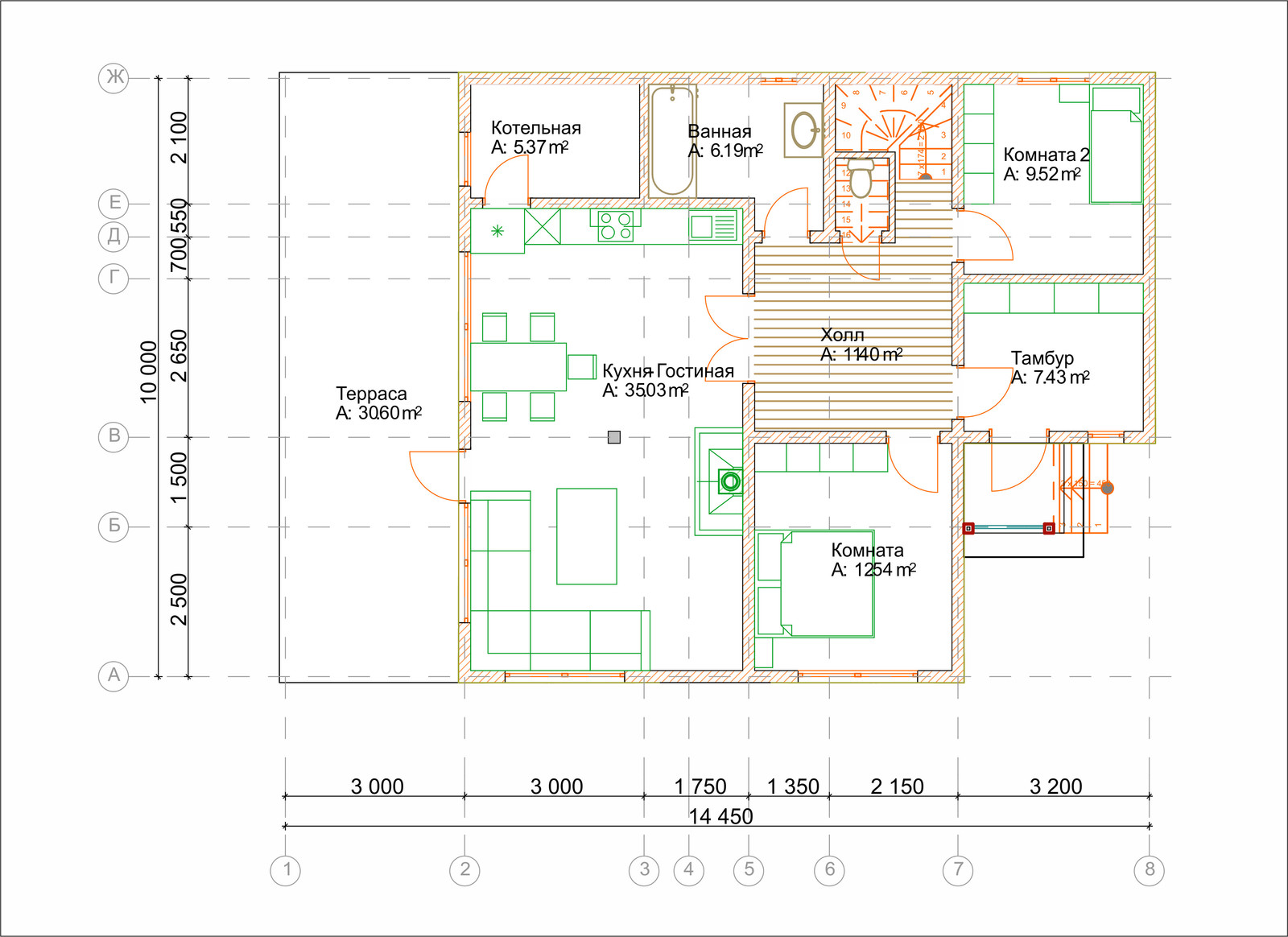
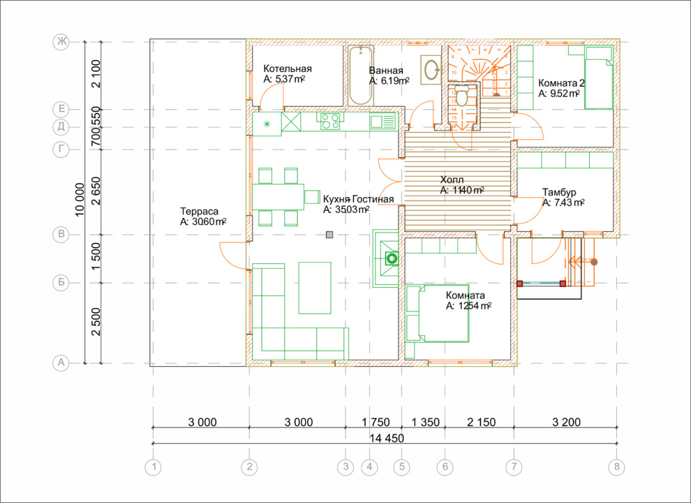
Проект каркасного дома 209 м2 - 2 этажа
На первом этаже расположены: тамбур, холл, 2 спальных комнаты, ванная, кухня-гостиная, котельная и терраса.
Другие фотографии в проекте
Вопросы к фото 0
Задайте вопрос
Вам ответят эксперты. Пришлем уведомление, когда вам ответят

