Проект дома "Танцующая Панда"
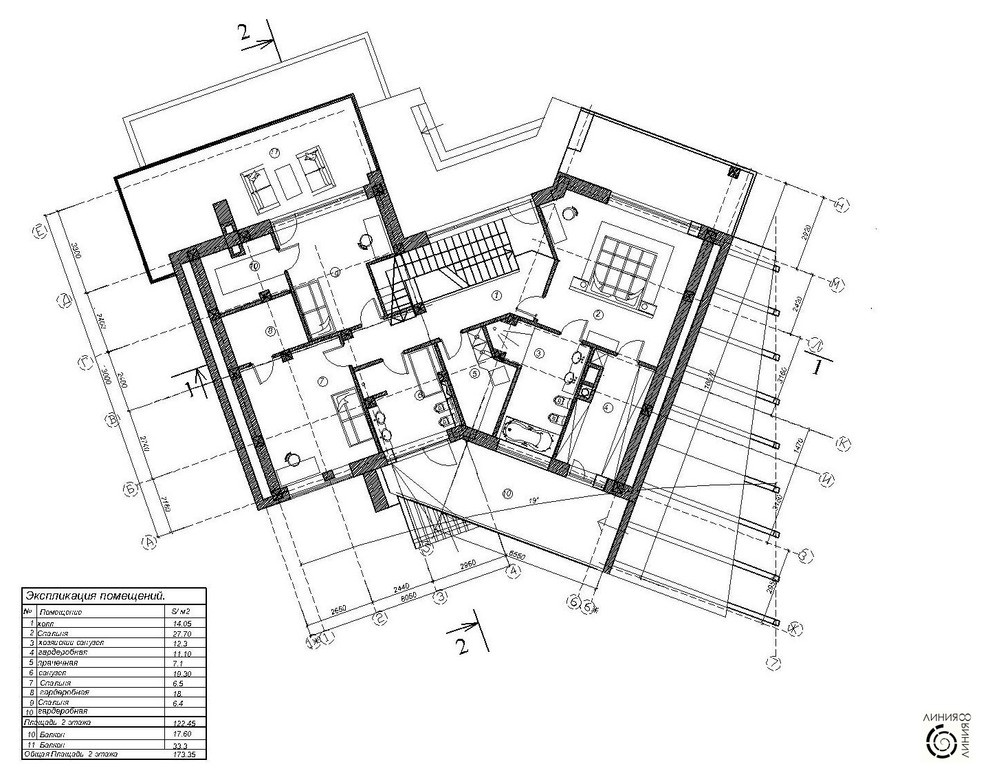
Молодой семье, обратившейся в архитектурное бюро «Линия 8», хотелось видеть свой дом современным и необычным. Сегодня строительные технологии позволяют воплощать самые смелые замыслы архитектора, так что все меньше барьеров сдерживают его фантазию. . Образ дома наравне с танцующей геометрией фасадов формируют большие площади остекления и контрастная черно-белая отделка. Скатная кровля спроектирована с учетом сложных климатических условий нашей полосы, фальцевое покрытие крыши переходит на наклонные элементы фасадов, что визуально связывает все грани проекта воедино. Стеклянный навес над крыльцом держится на вантах, эта же технология используется в навесе над автомобилями. В отделке стен использовался термообработанный планкен из лиственницы тонированный в черный цвет, остальная площадь стен оштукатурена и покрашена, а цоколь облицован черной клинкерной плиткой. Конструктивная схема дома – железобетонный каркас, это позволило сделать большие окна, наклонные стены и пространственный интерьер. . Общая площадь дома 450 метров квадратных. Планировка дома отвечает всем потребностям современной жизни. Первый этаж дома отведен для помещений общего пользования. Попасть в дом можно, как через парадный вход, так и со стороны навеса для машин, что очень удобно при разгрузке сумок. На террасу первого этажа, которая нависает над искусственным прудом можно выйти из гостиной. На ней располагается летняя кухня с барбекю комплексом. За большим столом с комфортом разместиться дружная компания, и особенно приятно то, что расчет инсоляции сделан таким образом, что террасы и балконы сориентированы на юго-запад, так что на них можно наслаждаться видом хвойного леса и закатом солнца, в то же время, навес для машин и помещение бойлерной смотрят на север. Первый этаж со вторым соединяет лестница на больцах, которая особенно выгодно смотрится через центральное окно заднего фасада. . Второй этаж – место отдыха хозяев и детей, здесь расположены их спальни с отдельными санузлами и гардеробными. . Третий этаж – это место развлечений: зал для домашнего кинотеатра, игровая комната, а при должной фантазии и настоящий театр.
8 фотографий








