Проект дома "Alcohouse"
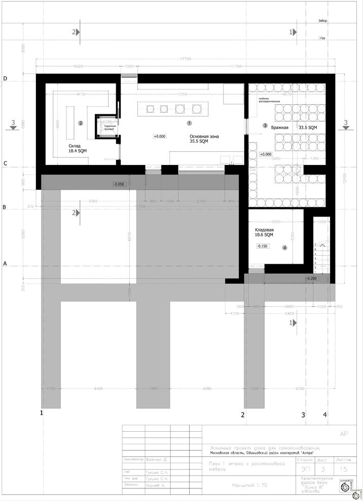
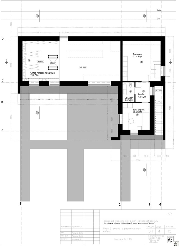
Самогоноварение не бизнес, а занятие для души. Продукт выдающегося качества для себя и друзей потребовал создание дома для своего производства. Архитекторами «Линия8» запроектирована интересная архитектура с посадкой здания на определенном месте в сложившемся ландшафте участка. Исходя из заданной заказчиком технологии самогоноварения, был выполнен проект дома с применением зеркального алюкобонда и сланца.
Год реализации: 2016
35 фотографий



































