Проект дома № 4
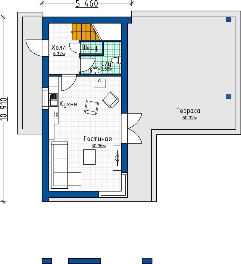
Адрес: пос. Сокольники . . Площадь: 129.12 м2 . Стоимость проекта: 9 500 руб. . . Стоимость строительства: 1 936 500 руб. . Комплект чертежей для строительства дома содержит: . Архитектурные решения (АР)
Год реализации: 2017
г. Москва
7 фотографий








