Проект дома № 1
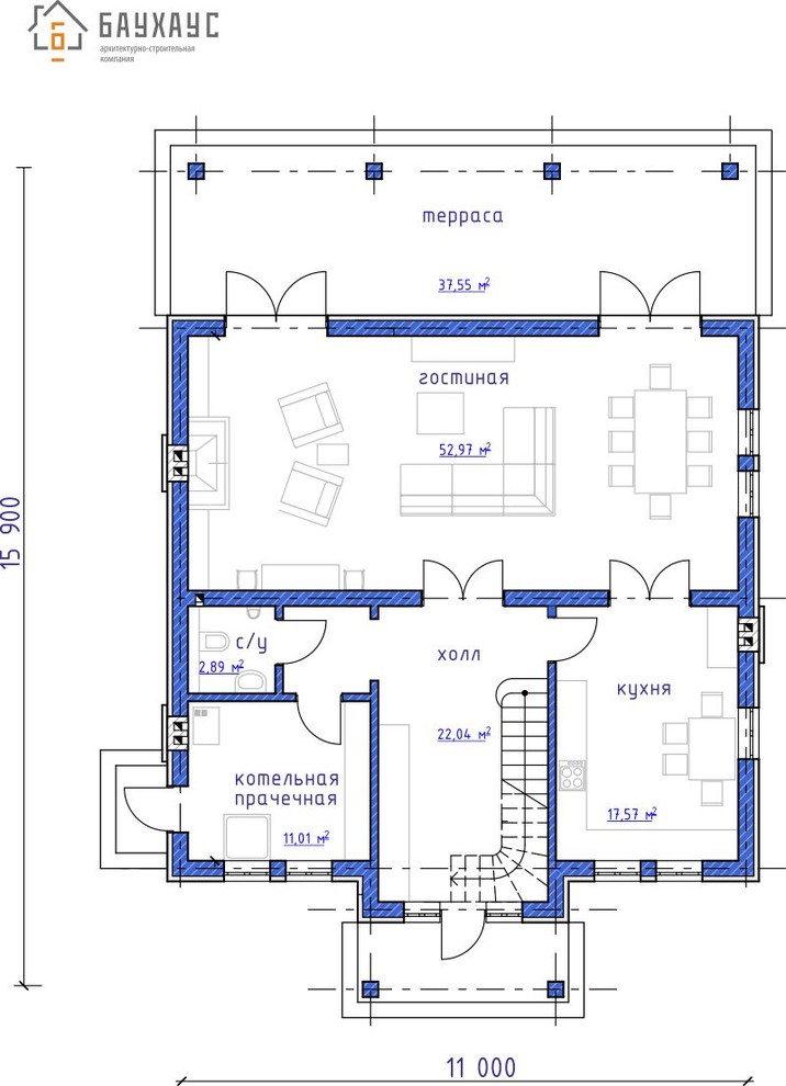
Адрес: пос. Заостровье . . Площадь: 226.66 м2 . Стоимость проекта: 16 000 руб. . . Стоимость строительства: 3 400 500 руб. . Комплект чертежей для строительства дома содержит: . Архитектурные решения (АР)
Год реализации: 2017
г. Москва
7 фотографий








