Проект дома Харлем
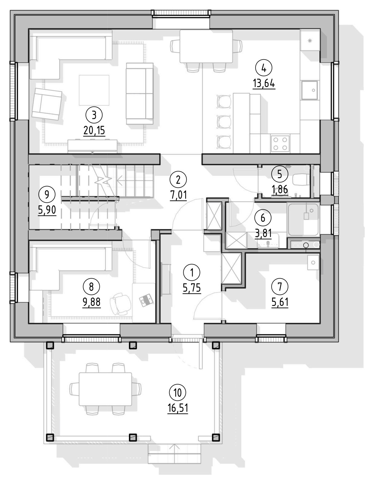
Современный двухэтажный дом для небольшой семьи. На первом этаже расположена объединенная кухня-столовая с гостиной, гардеробная и санузел. На втором расположена группа спален. Также в проекте предусмотрена небольшая веранда, на которой можно летними вечерами проводить ужин всей семьей.
Год реализации: 2022
Стоимость проектирования: 5 250 000 ₽
г. Москва
9 фотографий









