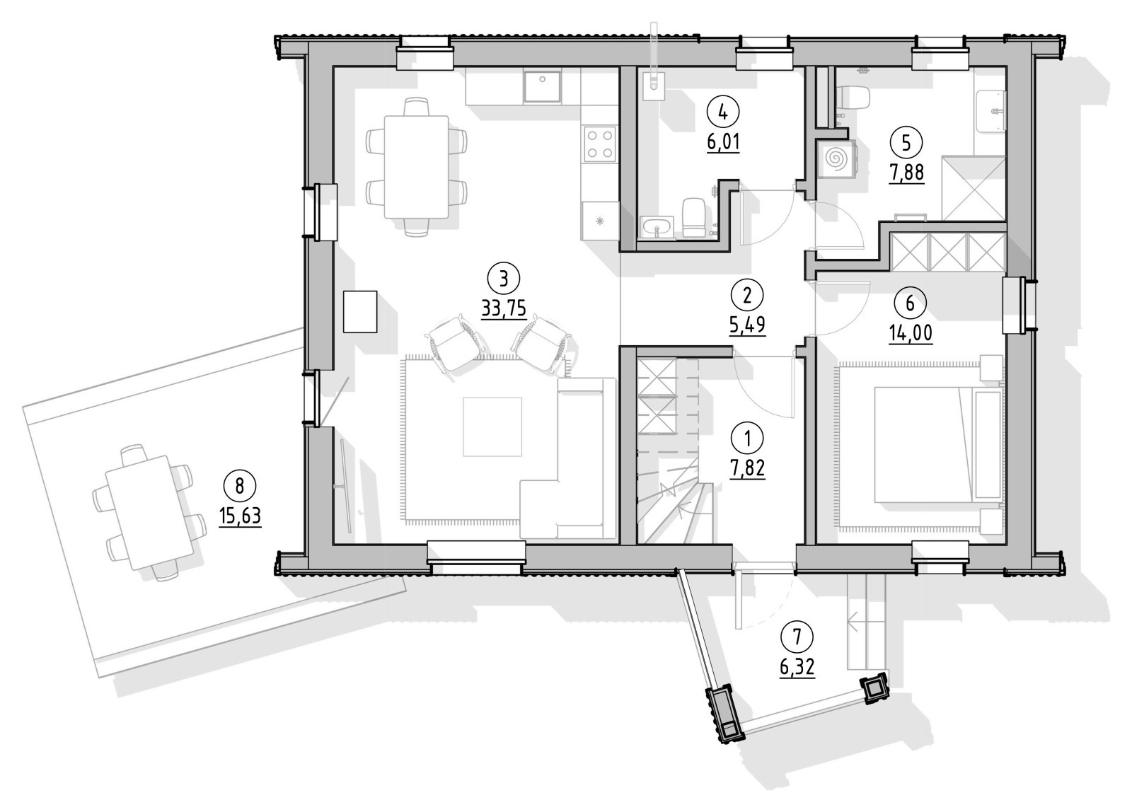
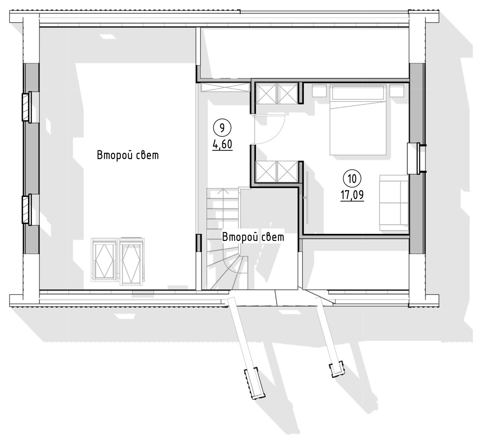
Проект дома Дрезден
Яркий представитель стиля барнхауз. На первом этаже расположена постирочная, санузел, гостевая спальня и кухня-столовая с выходом на открытую террасу. На втором – мастер-спальня. Уникальность проекту придает второй свет и балкон с видом на кухню-гостиную.
Год реализации: 2022
Стоимость проектирования: 5 250 000 ₽
г. Москва
11 фотографий











