проект дома К75 от KJland.ru
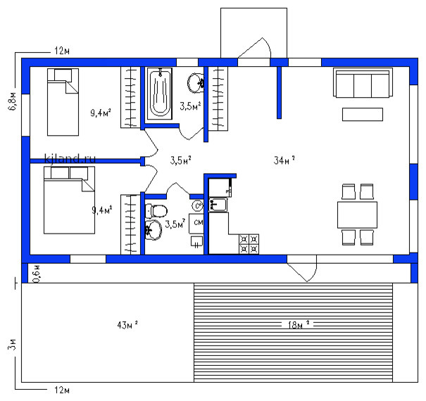
Проект строительства жилого дома K75. Площадь 75 м2, 2 спальни. . Строительство под ключ с заранее известной стоимостью. Смотрите на сайте. Гипоаллергенные натуральные материалы отделки.
Год реализации: 2019
Стоимость проектирования: 5 250 000 ₽
2 фотографии


