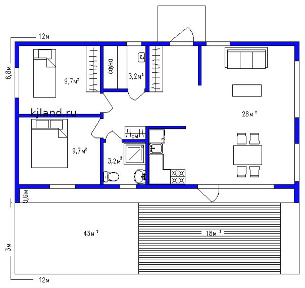
Профиль пользователяпроект дачи Д75 от KJland.ruГод реализации: 2019Стоимость проектирования: 5 250 000 ₽г. Домодедово2 фотографииПоделитьсяСохранитьпроект дачи Д75 от KJland.ruПоделитьсяСохранитьпроект дачи Д75 от KJland.ruПоделитьсяСохранить