Проект бани - гостевого дома
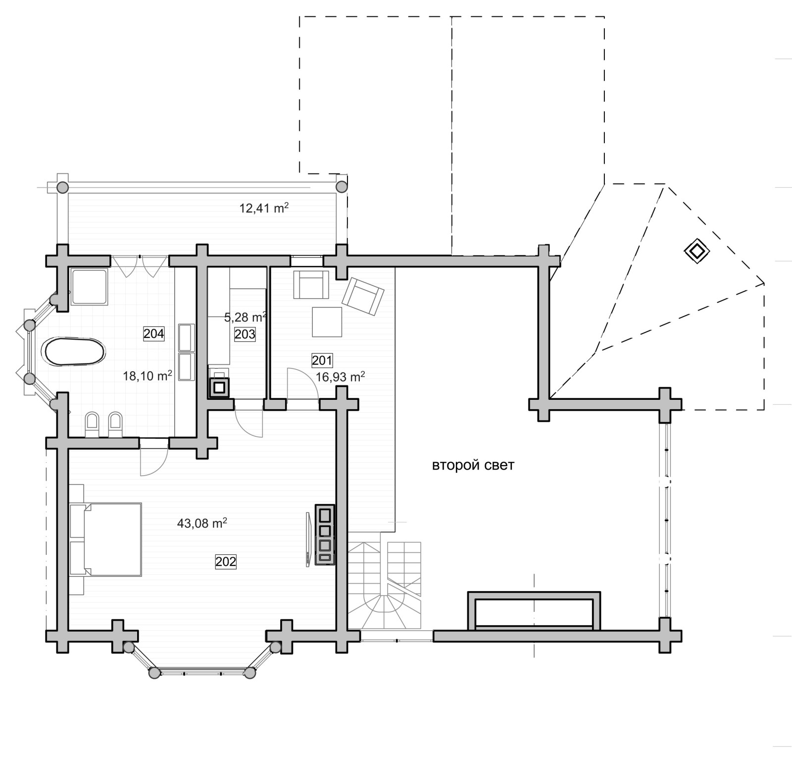
Основное назначение этого здания – баня с большой парной, помещениями для банных процедур. В просторной двусветной гостиной можно принять большое количество друзей . Но здесь есть и все, что нужно для жизни: полноценная кухня и просторная спальня с большой ванной и гардеробной. .
Год реализации: 2020
г. Москва
4 фотографии





