Проект 84 м²: современная неоклассика для семьи.
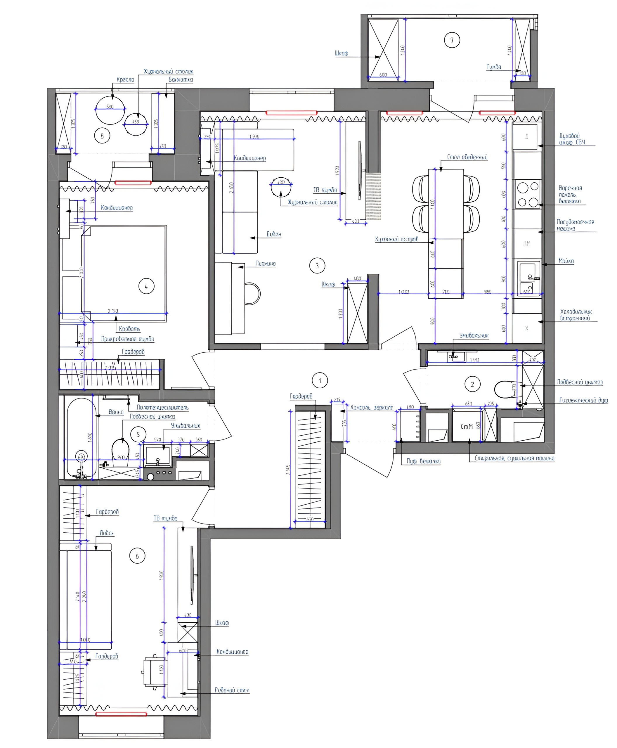
Проект: Семейная неоклассика — гармония и функциональность на 84 квадратах Локация: Москва. Объект: Квартира, 84 м². Для кого: Семья с ребенком-школьником (заказчик — IT-директор, супруга — преподаватель музыки). Проблема клиента Главный запрос семьи - грамотно оптимизировать имеющуюся площадь, чтобы у каждого появилось свое комфортное пространство для жизни и хобби. Основные боли и пожелания: Кухня: Супруга мечтала о большой, просторной кухне для семейных ужинов. Хобби: Нужно было обязательно найти место для габаритного фортепиано, не превратив при этом гостиную в склад мебели. Хранение: Не хватало мест для бытовых вещей, пылесосов и мелочей - семье был необходим полноценный хозблок, чтобы разгрузить комнаты. Наше решение Мы перепланировали пространство, создав элегантный и легкий неоклассический интерьер, где каждый квадратный метр работает на комфорт семьи. Кухня мечты: Мы увеличили зону кухни и реализовали главное желание хозяйки. Центром притяжения стал функциональный остров, который плавно переходит в полноценный обеденный стол - это позволило сэкономить место и создать стильную обеденную группу. Музыкальная гостиная: Грамотное зонирование помогло выделить парадную зону отдыха, куда идеально и естественно вписалось фортепиано супруги. Лаконичная мастер-спальня: Немного увеличили площадь спальни, сделав ее максимально функциональной. Главной фишкой стал присоединенный балкон - там мы разместили красивый книжный стеллаж и организовали уютную зону для утреннего кофе. Детская для школьника: Создали эргономичное пространство с продуманной системой хранения вещей и комфортным рабочим столом для уроков. Умное хранение и санузлы: В коридоре спроектировали большую встроенную систему хранения с выделенным хозблоком - теперь все бытовые мелочи скрыты от глаз. Санузлы также были грамотно зонированы, чтобы утренние сборы всей семьи проходили без очередей и суеты.
38 фотографий






































