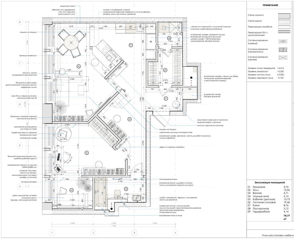
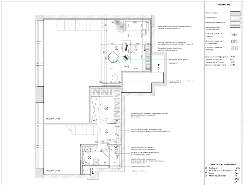
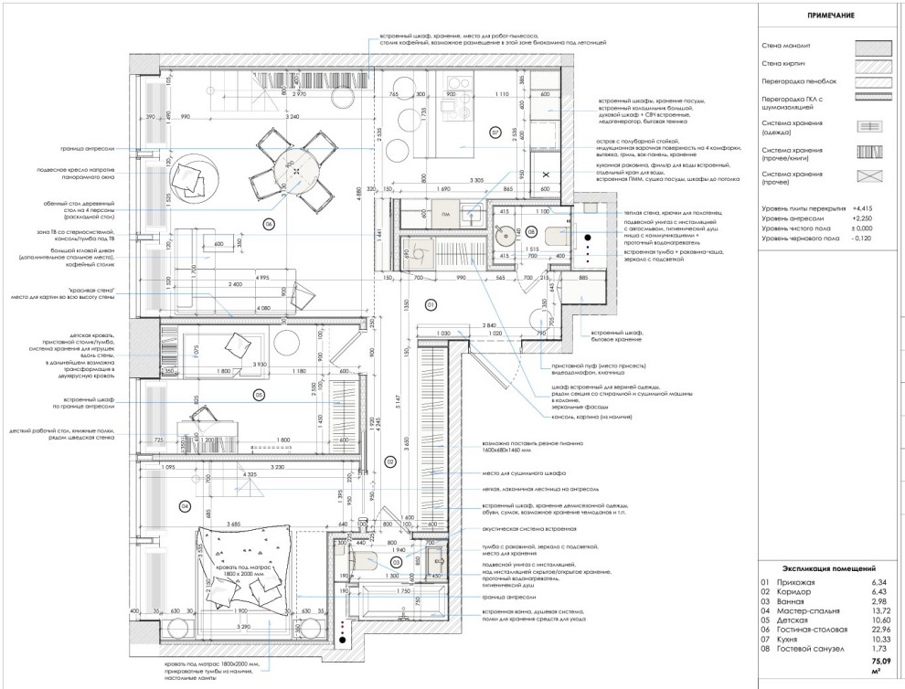
Примеры разработки планировочного решения
Разработка вариантов планировочного решения в новостройке (ЖК Садовые кварталы) и вторичного жилья - сталинка (Фрунзенская набережная)
Год реализации: 2022
г. Москва
6 фотографий
Разработка вариантов планировочного решения в новостройке (ЖК Садовые кварталы) и вторичного жилья - сталинка (Фрунзенская набережная)
6 фотографий
