
Проектирование и строительство
0
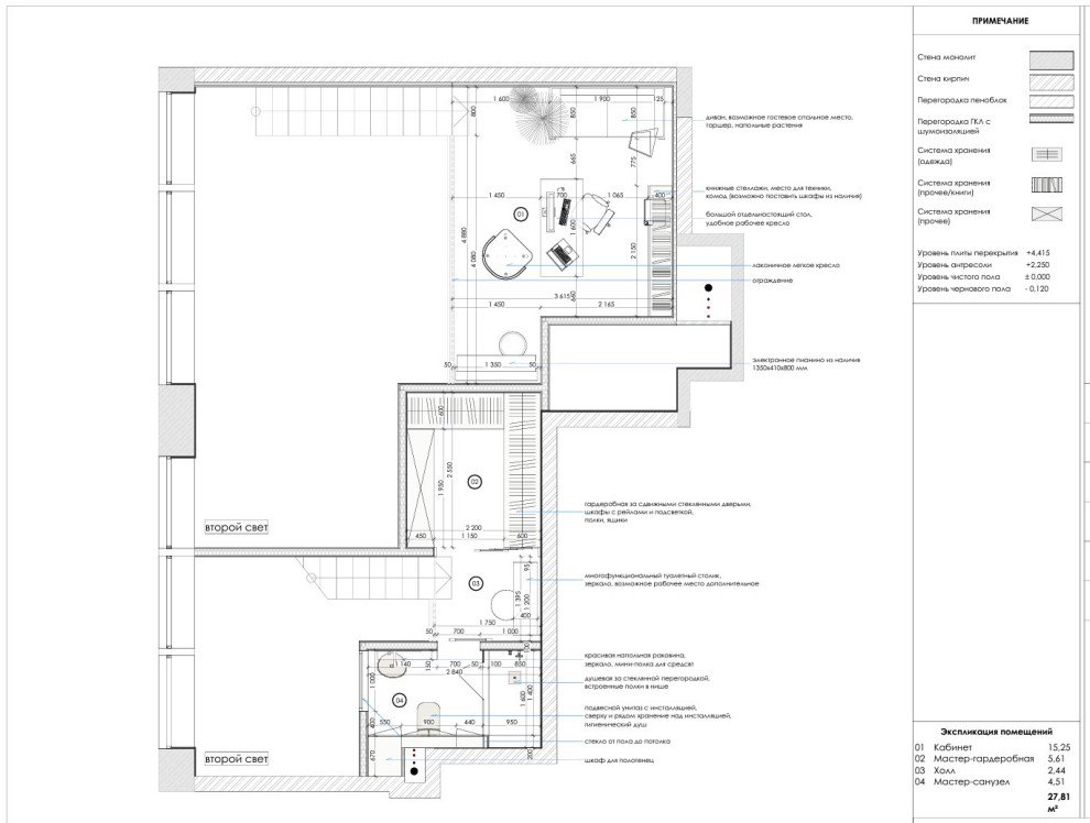
Примеры разработки планировочного решения
Разработка вариантов планировочного решения в новостройке (ЖК Садовые кварталы) и вторичного жилья - сталинка (Фрунзенская набережная)
Другие фотографии в проекте
Вопросы к фото 0
Задайте вопрос
Вам ответят эксперты. Пришлем уведомление, когда вам ответят




