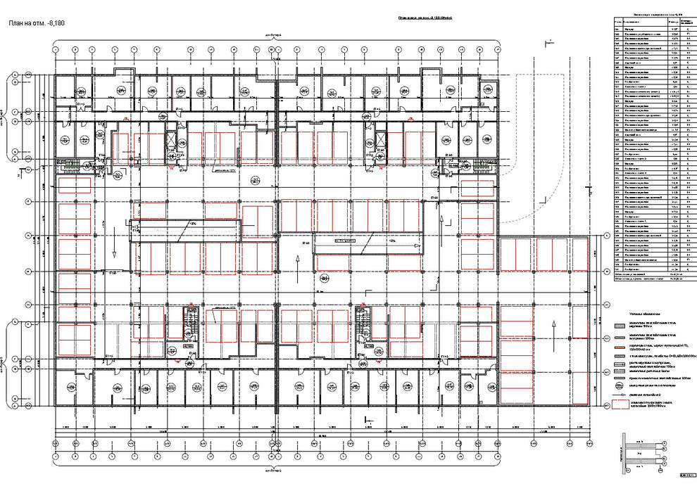
Подземная многоуровневая автостоянка 8450 кв.м.
Проект многоуровневой подземной автостоянки на 161 машино место. Проект прошел экспертизу, разрабатывается рабочая документация
Год реализации: 2017
Стоимость проектирования: 525 000 ₽
4 фотографии
Проект многоуровневой подземной автостоянки на 161 машино место. Проект прошел экспертизу, разрабатывается рабочая документация
4 фотографии
