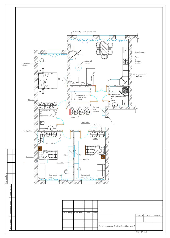
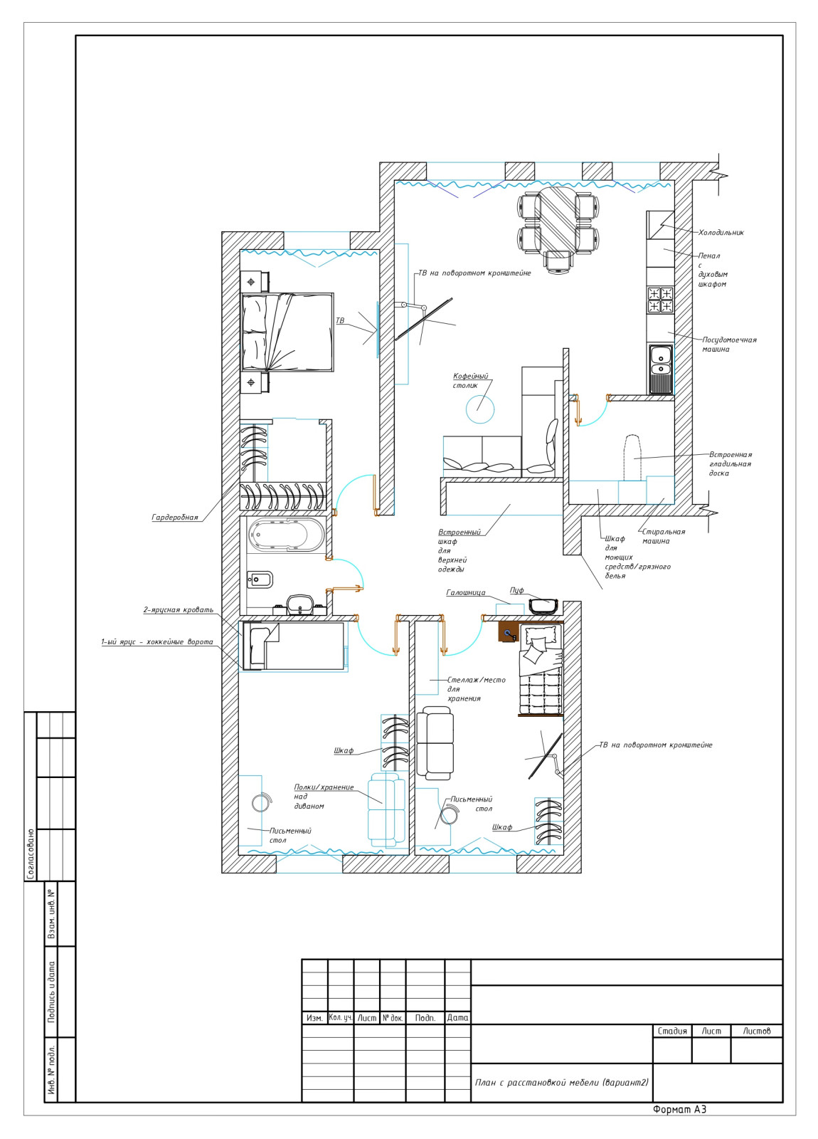
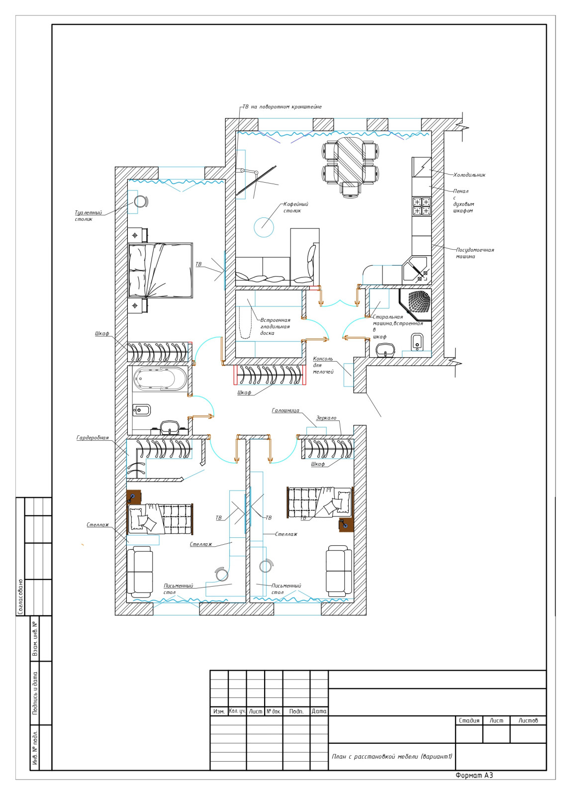
Профиль пользователяПланировочное решение 3-комнатной квартирыГод реализации: 20213 фотографииПоделитьсяСохранитьПланировочное решение 3-комнатной квартирыПоделитьсяСохранитьПланировочное решение 3-комнатной квартирыПоделитьсяСохранитьПланировочное решение 3-комнатной квартирыПоделитьсяСохранить