
Дизайнеры интерьера
5
·
10 отзывов
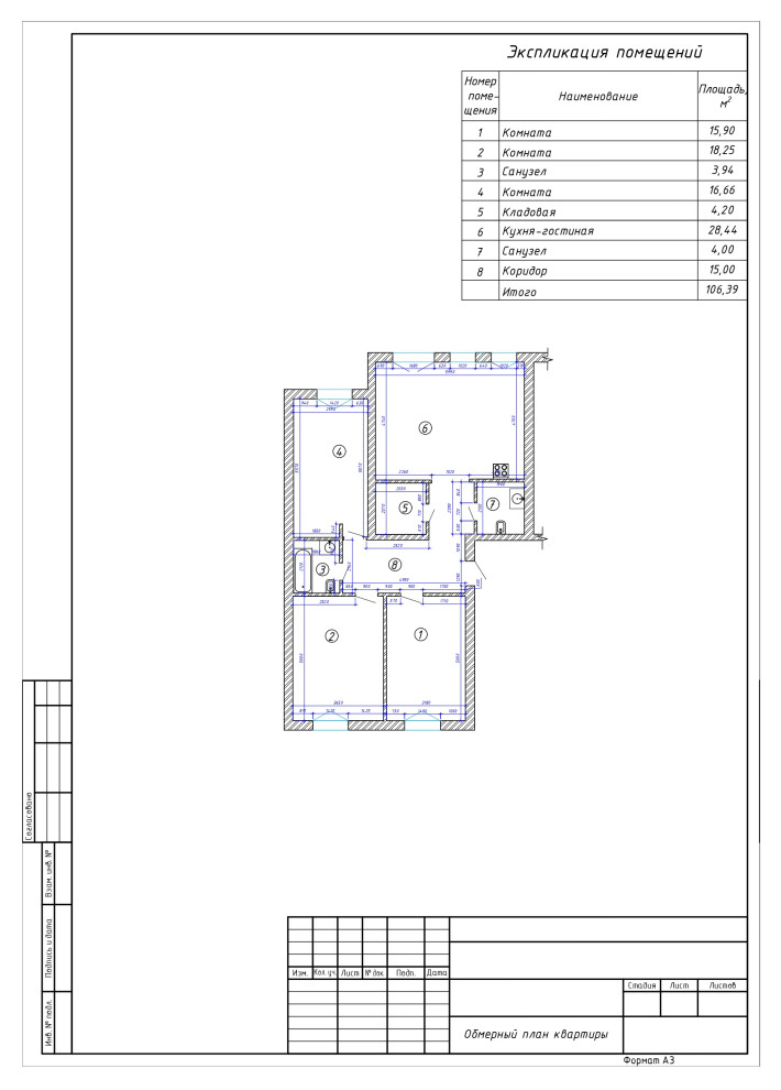
Планировочное решение 3-комнатной квартиры
Выполнено планировочное решение 3-комнатной квартиры. Запрос клиента - 2 детские, спальня и просторная кухня-гостиная.
Другие фотографии в проекте
Вопросы к фото 0
Задайте вопрос
Вам ответят эксперты. Пришлем уведомление, когда вам ответят

