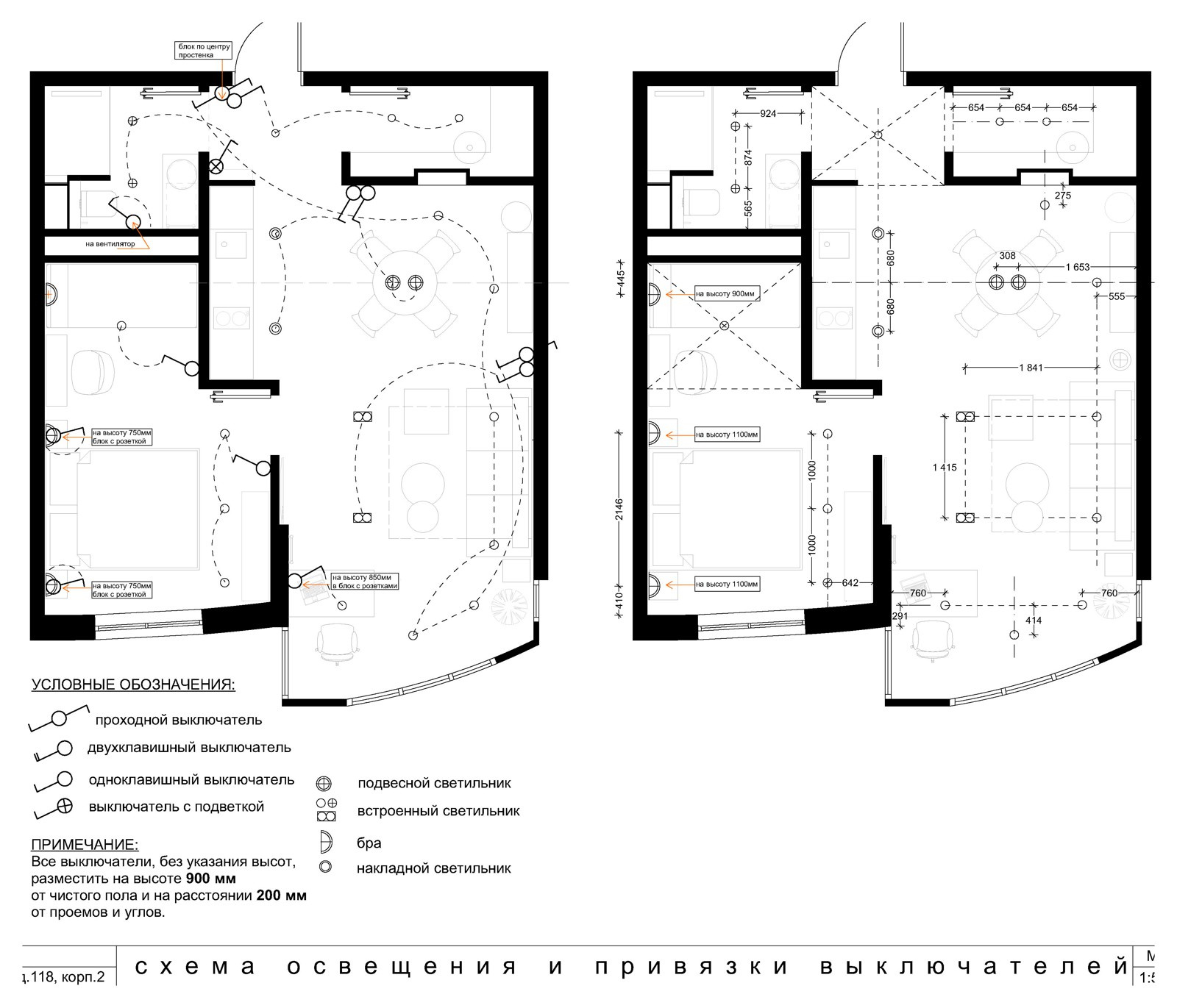
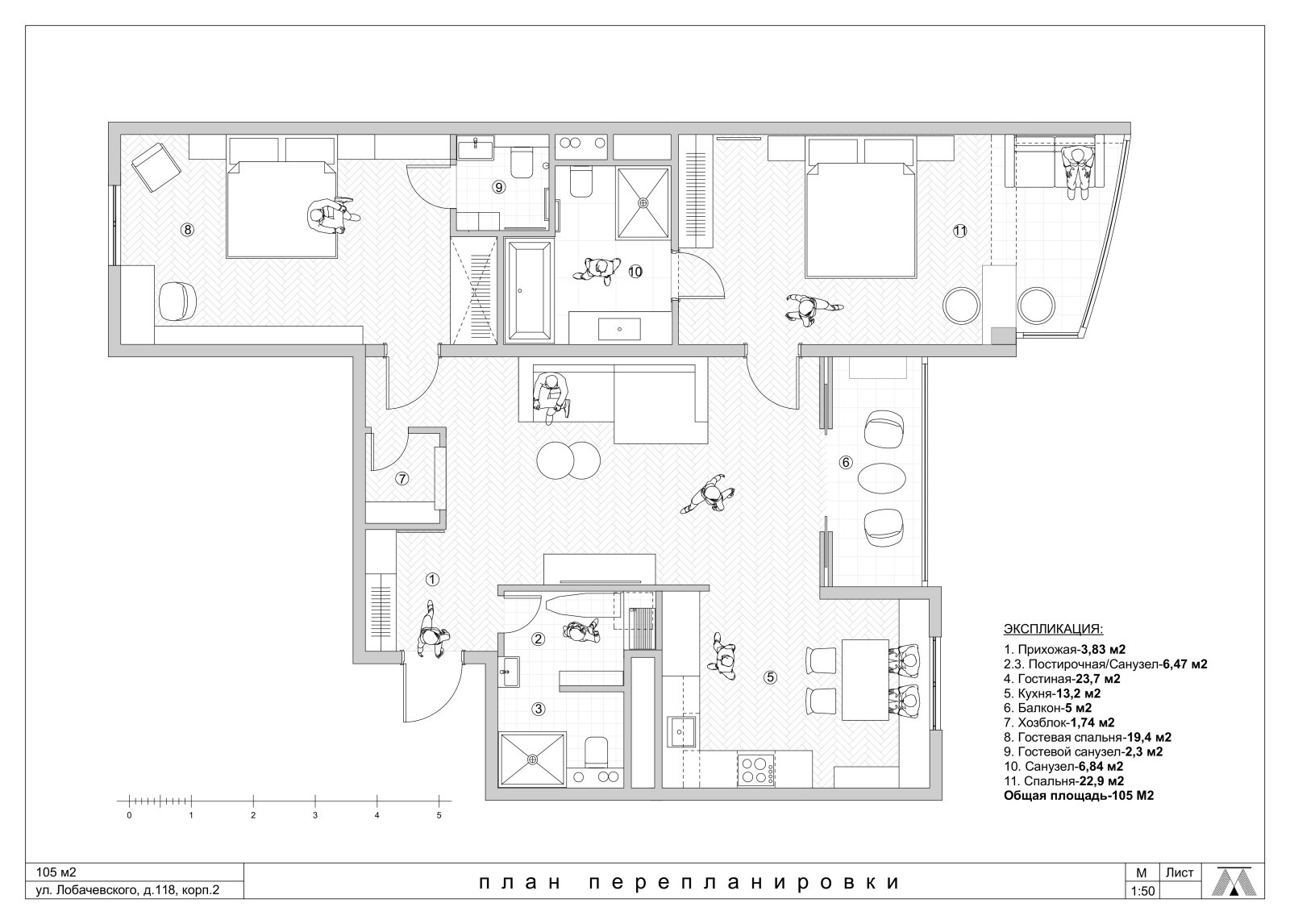
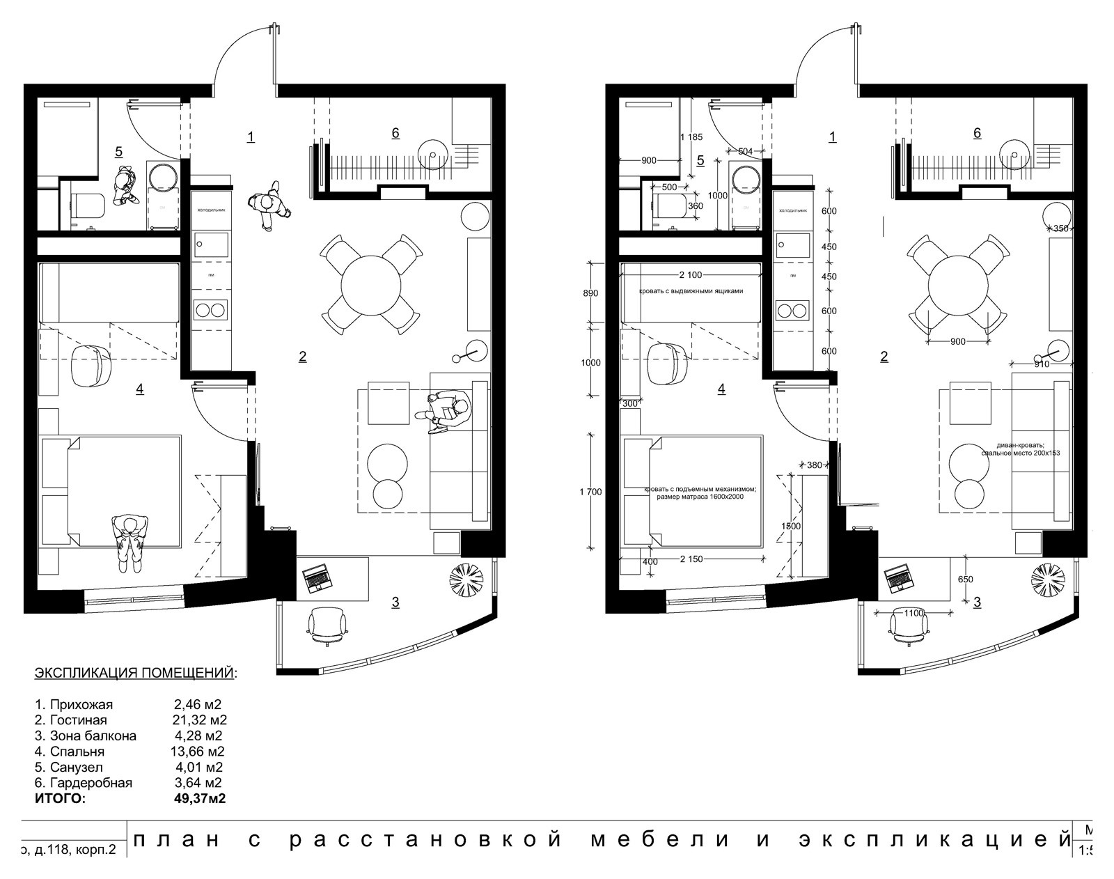
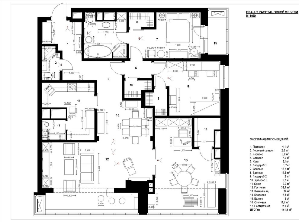
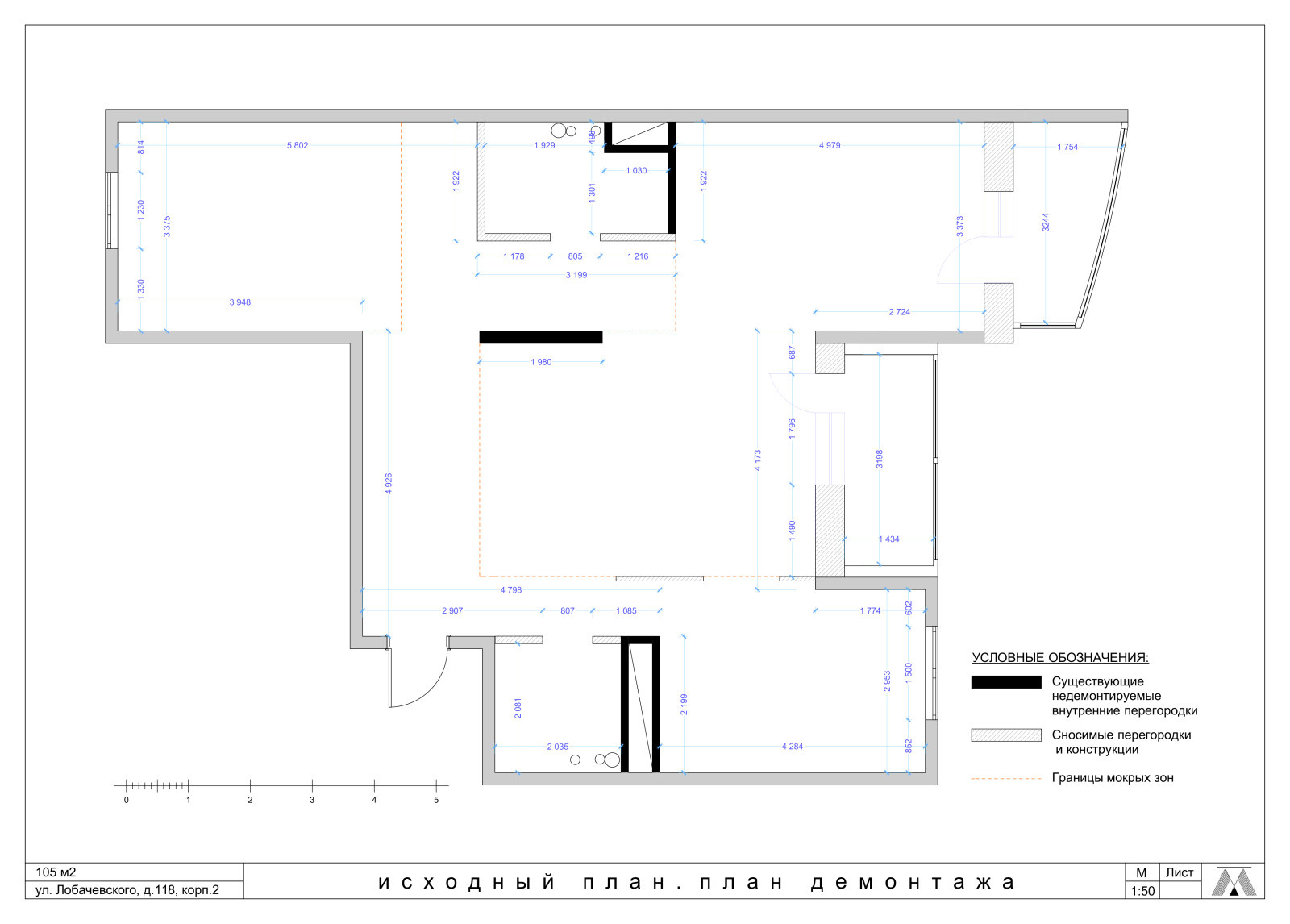
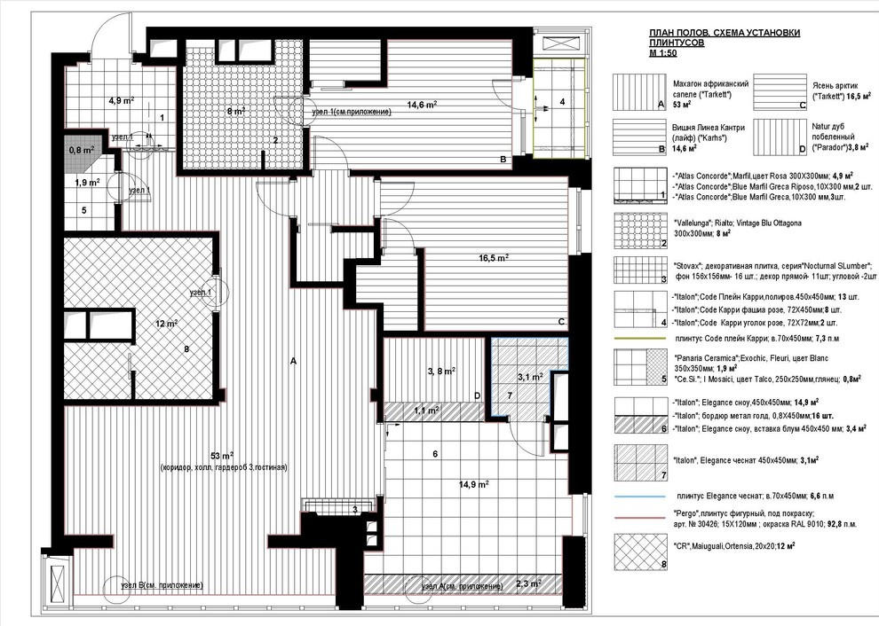
Профиль пользователяПланировки. Разработки. ДеталиГод реализации: 2019г. Москва24 фотографии ПоделитьсяРаработка кухонной стеныПоделитьсяСохранитьИсходный планПоделитьсяСохранитьУтвержденный вариант перепланировкиПоделитьсяСохранитьРеализация декоративного панно в интерьереПоделитьсяСохранитьРеализованный проект домашнего бара в интерьереПоделитьсяСохранитьРазработка декоративного панно в ванной комнатеПоделитьсяСохранитьРазработка функционала гардеробовПоделитьсяСохранитьРазработка домашнего бараПоделитьсяСохранитьРазработка функциональной столещницы в ваннойПоделитьсяСохранитьРазработка навеса для загородного дома.ПоделитьсяСохранитьСхема освещенияПоделитьсяСохранитьРазработка кухонного блокаПоделитьсяСохранитьПлан с привязкой розетокПоделитьсяСохранитьПлан с рассстановкой мебелиПоделитьсяСохранитьПлан демонтажа/монтажаПоделитьсяСохранитьРазвертки стен ванной комнаты с экспликациейПоделитьсяСохранитьРазвертки стен ванной комнаты с экспликациейПоделитьсяСохранитьПлан возводимых и сносимых перегородокПоделитьсяСохранитьПлан с расстановкой мебелиПоделитьсяСохранитьРазвертка стен проектируемого ресторанаПоделитьсяСохранитьРазработка барной стойки в зоне присоединяемого балконаПоделитьсяСохранитьЭтапыПоделитьсяСохранитьПлан с расстановкой мебели в размерахПоделитьсяСохранитьИзометрия квартиры, планировка, вид сверхуПоделитьсяСохранить