Первый Московский: двухкомнатная квартира 74 кв.м.
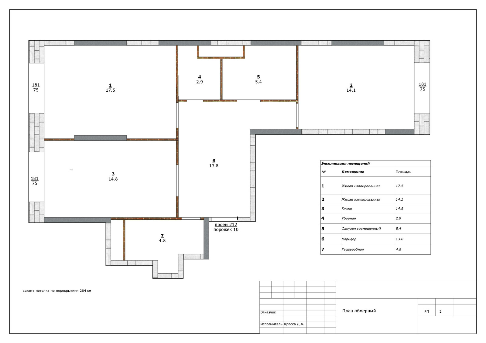
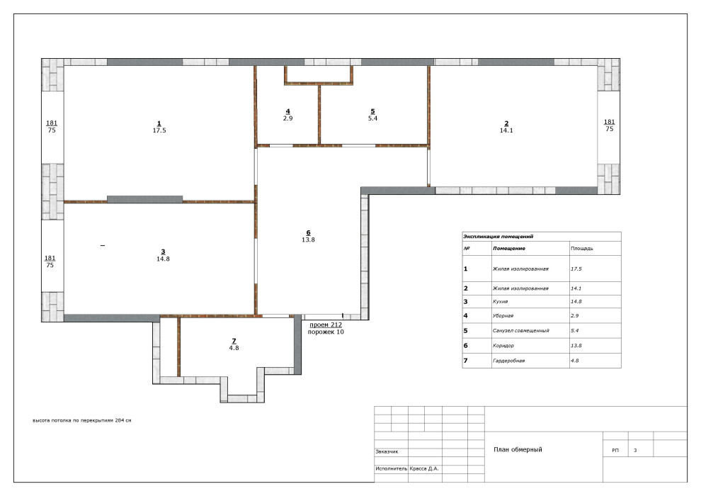
Двухкомнатная квартира в Новой Москве, в комплексе 1-ый Московский. Заказчики - супружеская пара, дети уже взрослые. Целью при разработке дизайна было создать продуманный и комфортный интерьер премиум-уровня, который проявился бы в качестве оформления, отделки, обстановки мебелью, освещения, и конечно, в выверенной эстетике и пропорциях всех деталей дизайна. Кроме этого, была проведена перепланировка, которая с успехом была согласована профильной компанией. . В квартире есть большая кухня-гостиная, которая получена путем объединения кухни, гардеробной и части коридора в изначальной планировке от застройщика. Спальня хозяев практически не поменяла своей площади, как и вторая комната, которая по назначению стала гостевой. В санузлах произошла перепланировка, в результате которой были организованы просторный совмещенный санузел с душевой, и постирочная комната. . По стилю интерьер получился эклектичным, в основе которой лежат подходы модернизма и минимализма, с добавлением элементов классики и ар-деко. . В оснащении используется заказная мебель по индивидуальным параметрам и размерам, по стилю вполне современная. Профильные линейные светильники, характерные для минимализма, сочетаются с люстрами из натурального оникса в стиле ар-деко. Полы из крупноформатного керамогранита под мрамор и оникс в жилых комнатах сменяются паркетом в укладке английской елкой. Современные тренды выражены в использовании досок более крупного, чем по традиции, формата. Стены отделаны декоративными штукатурками, почти однородными по цвету, но играющими легкой фактурой и текстурой - это оживляет пространство и придает уюта и природной гармонии. В целом интерьер сделан в теплой природной гамме, без резкий цветовых противопоставлений. . .
51 фотография




















































