logo
Войти
Профиль пользователя

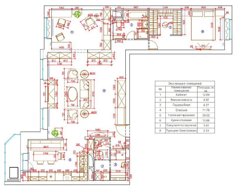
Перепланировка с турецкой баней

Год реализации: 2020
photo

3 фотографии

Перепланировка с турецкой баней
Перепланировка с турецкой баней
Перепланировка с турецкой баней
Перепланировка с турецкой баней
Перепланировка с турецкой баней
Перепланировка с турецкой баней
Фоновое изображение профиля Viktoria Toader
Фото профиля Viktoria Toader

Viktoria ToaderViktoria Toader

0

0 отзывов

Дизайнеры интерьера

Контакты

Румыния, Бухарест

Все проекты

Организация рабочего пространства

Стилевое решение для бизнес-кухни

Стилевое решение черный+золото для кухни, столовой и гостиной

Гостиная-столовая с бирюзовым акцентом

Смотреть все
Флатика
О насМы в прессеFAQКонтактыМатериалыКарта сайта

«Флатика» в соцсетях:

ПинтерестМаксВкДзенTelegramTelegram Pro
Pro
Instagram

Продукт компании Meta, признанной экстремистской организацией, деятельность которой запрещена в РФ

Пользовательское соглашениеПолитика в отношении обработки персональных данных

© 2026 Flatica

ФотоЭкспертыСтатьи