
Дизайнеры интерьера
0
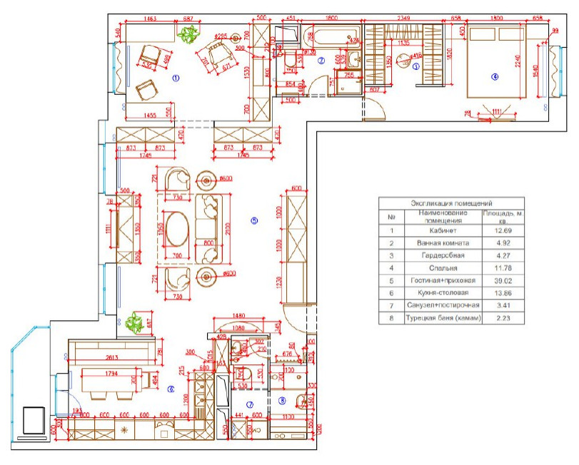
Перепланировка с турецкой баней
Вариант перепланировки с основными размерами: в квартире уместились: спальня с гардеробной, два санузла с постирочной в одном из них, турецкая баня, комната для работы и отдыха с биокамином, гостиная с ТВ-зоной, кухня-столовая и множество мест для хранения.
Другие фотографии в проекте
Вопросы к фото 0
Задайте вопрос
Вам ответят эксперты. Пришлем уведомление, когда вам ответят

