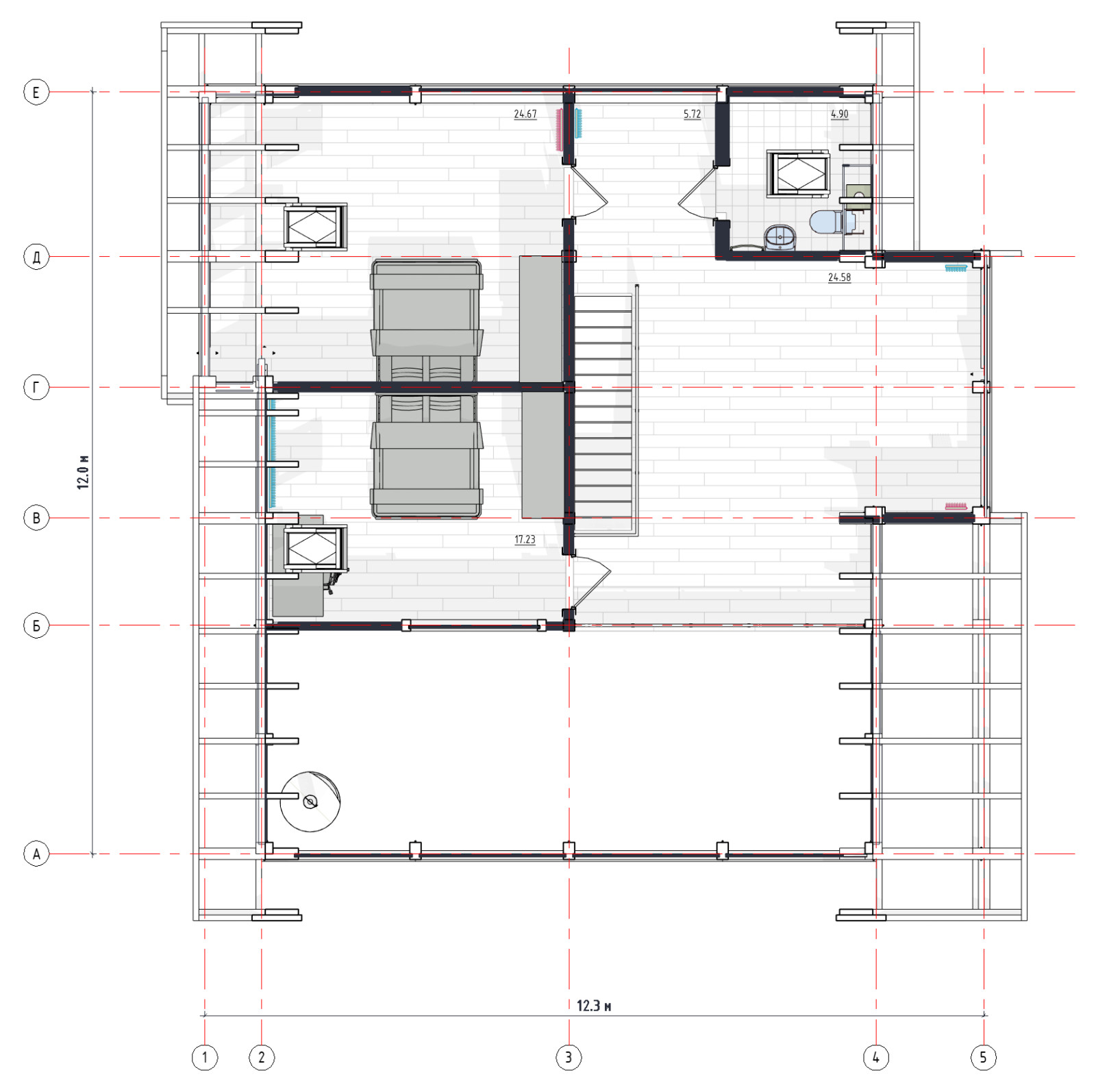
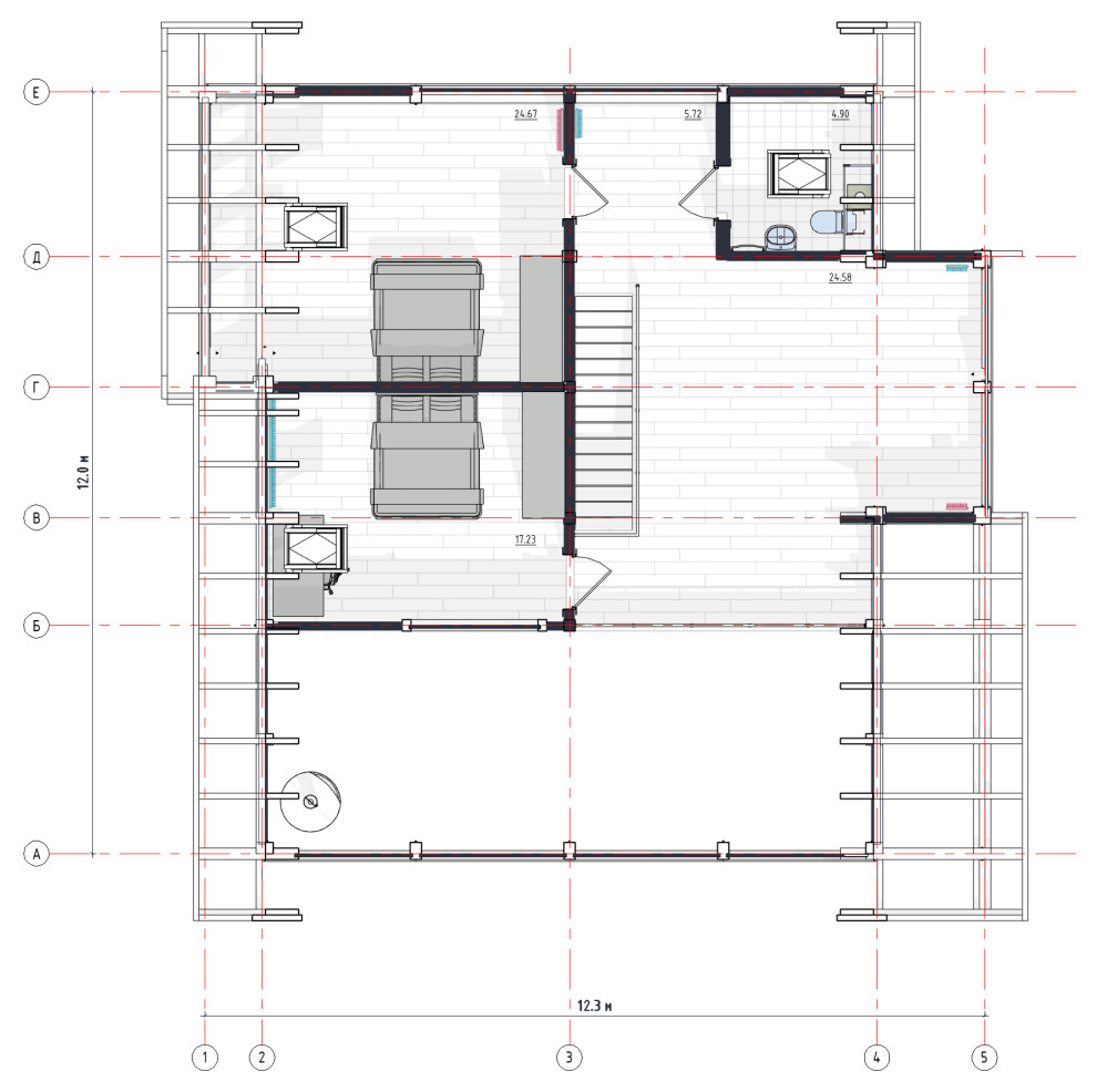
Профиль пользователяОтрадное 250Год реализации: 2022Стоимость проектирования: 275 000 ₽13 фотографийПоделитьсяСохранитьПлан 2 этажаПоделитьсяСохранитьПлан 1 этажаПоделитьсяСохранитьОбъемный план 1 этажаПоделитьсяСохранитьОбъемный план 1 этажаПоделитьсяСохранитьОбъемная планировка 2 этажаПоделитьсяСохранитьОбъемная планировка 2 этажаПоделитьсяСохранитьПомещение котельной с размещенным оборудованиемПоделитьсяСохранитьОбщий вид инженерных систем зданияПоделитьсяСохранитьУзел крепления деревянного каркаса к монолитному фундаментуПоделитьсяСохранитьОбщий вид конструктивной части зданияПоделитьсяСохранитьПанорамное остекление в стилей современного фахверкаПоделитьсяСохранитьВосточный фасад с дополнительной врезанной односкатной крышейПоделитьсяСохранитьГлавный фасадПоделитьсяСохранить