Ландыши 125
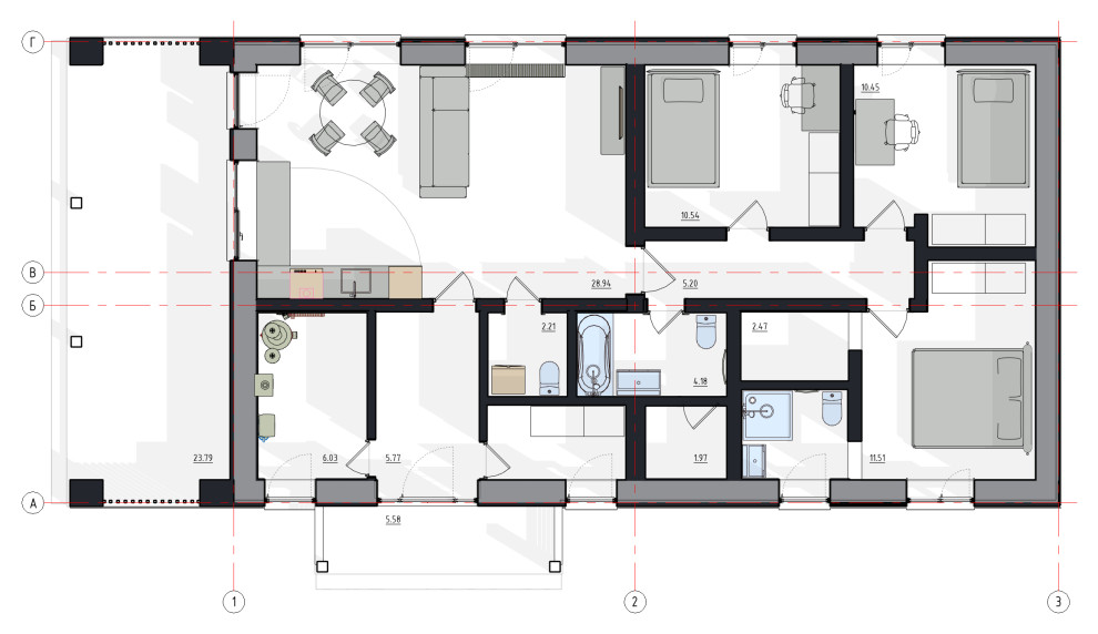
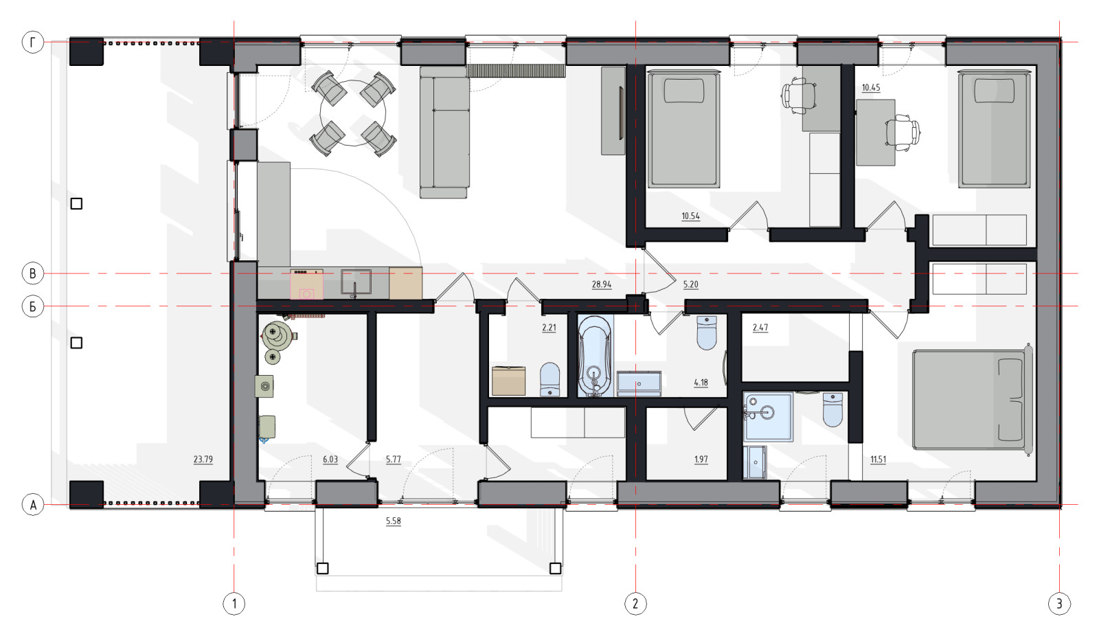
Когда речь идет о классицизме, в первую очередь вспоминаются симметрия, колонные портики, светлые цвета и высокие окна. Именно этими качествами мы наделили фасад данного дома, выполненного в неоклассическом стиле. Ощущения симметрии мы достигли с помощь оформления крыльца и прямоугольной формой в плане. Роль традиционного портика сыграло тоже самое крыльцо, с деревянными колоннами. Фасад выкрашен в белый цвет, а высокие окна – это стилистическая особенность современной архитектуры. . . Новизну и современность фасада мы выразили во вставках из дерева, дающих разнообразие. Белая система водостока дала изысканные нюансы формы и тонкие тени на стены дома. Один из боковых фасадов мы сделали крытой верандой, что визуально облегчило образ дома. Простые формы, симметрия и спокойная цветовая гамма делают этот дом мирным местом для умиротворенной жизни.
11 фотографий












