Оранжевое с синим
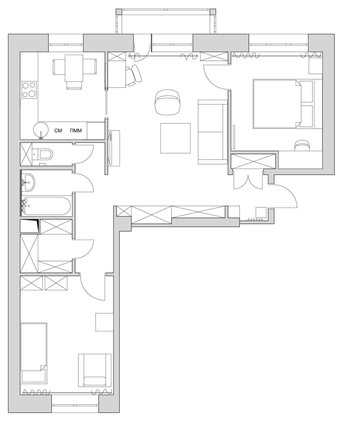
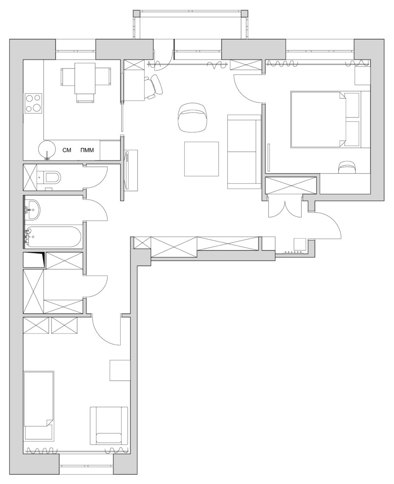
Трехкомнатная квартира в Москве площадью 70,2 кв.м для молодой пары. Современный, яркий интерьер, но очень комфортный интерьер. Базовые цвета интерьера – оранжевый и синий - были пожеланием заказчиков. . Перепланировка квартиры позволила избавится от длинного коридора и решить вопрос с хранением в маленькой прихожей. . В итоге получилась удобная квартира с двумя спальнями, гардеробной и большой открытой гостиной. . . Соавтор проекта Лилия Лобанова
Год реализации: 2015
14 фотографий














