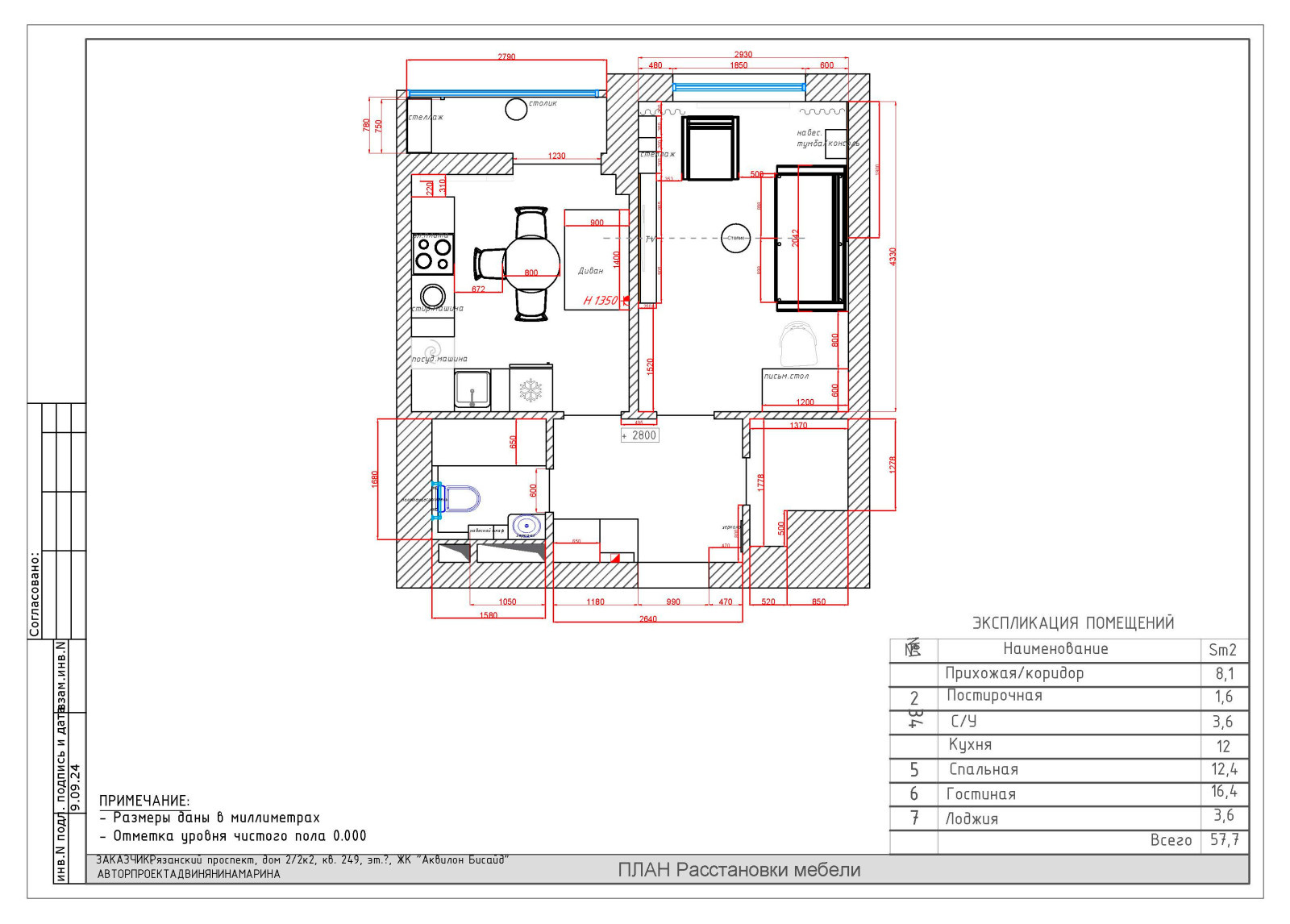
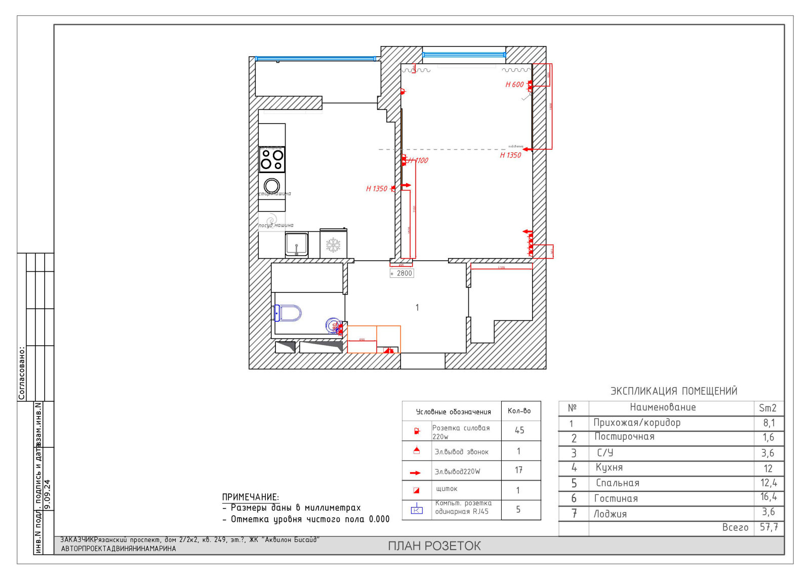
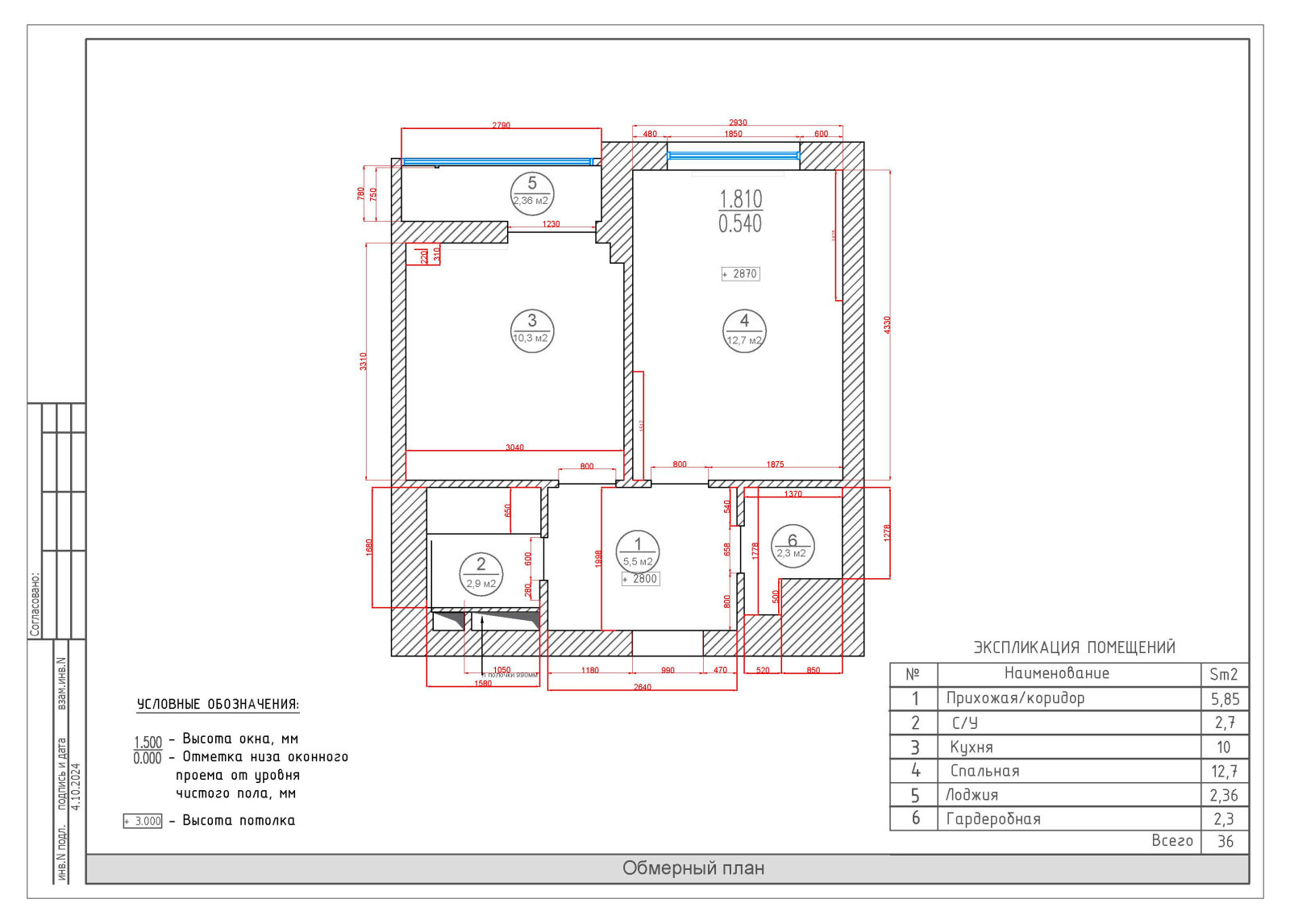
Однокомнатная квартира ЖК Спутник
Однокомнатная квартира. Задача: Минимизировать затраты на ремонт. Квартира для молодого холостяка
Год реализации: 2024
Стоимость проектирования: 275 000 ₽
13 фотографий
Однокомнатная квартира. Задача: Минимизировать затраты на ремонт. Квартира для молодого холостяка
13 фотографий
