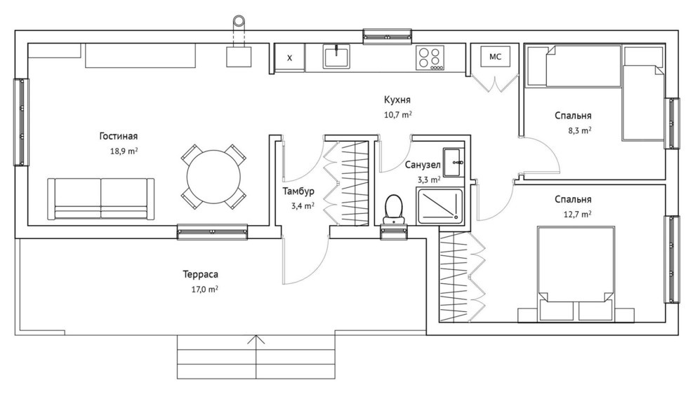
Профиль пользователяОдноэтажный каркасный дом 13.7х6.2 мГод реализации: 20166 фотографийПоделитьсяСохранитьОдноэтажный каркасный дом 13.7х6.2 мПоделитьсяСохранитьДоОдноэтажный каркасный дом 13.7х6.2 мПоделитьсяСохранитьДоОдноэтажный каркасный дом 13.7х6.2 мПоделитьсяСохранитьДоОдноэтажный каркасный дом 13.7х6.2 мПоделитьсяСохранитьДоОдноэтажный каркасный дом 13.7х6.2 мПоделитьсяСохранитьДоОдноэтажный каркасный дом 13.7х6.2 мПоделитьсяСохранить