Не боимся ярких красок
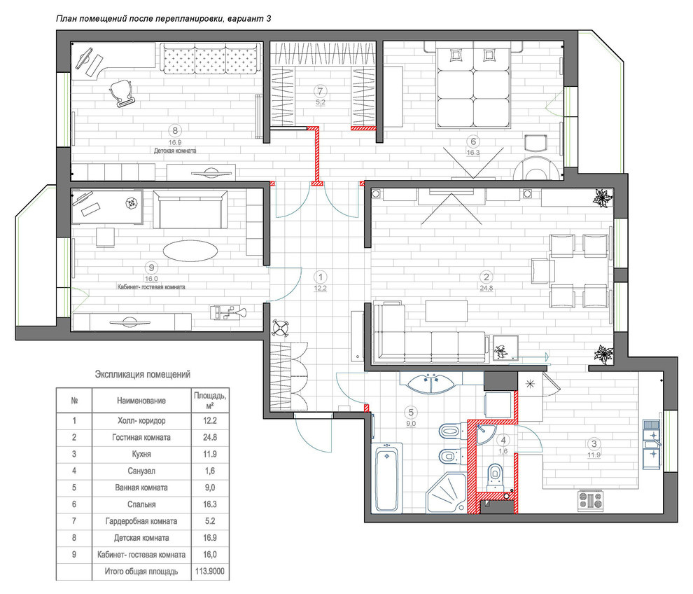
Задача. . Создать уникальный интерьер, не боясь использовать яркие цвета и элементы дизайна. . Площадь - 115 м2. . В представленной подборке 3D эскизы сопоставлены с реальными фотографиями квартиры.
Год реализации: 2015
Стоимость проектирования: 275 000 ₽
г. Санкт-Петербург, 16 улица Маршала Захарова
29 фотографий





























