Московский лофт
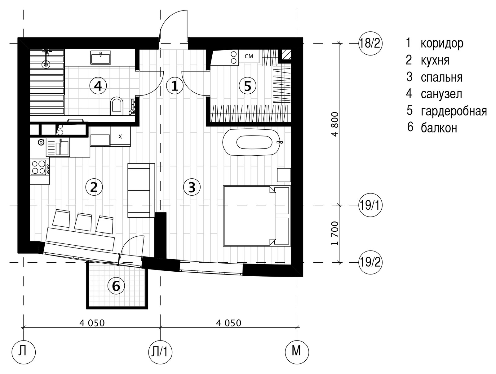
Пожеланием заказчика было сделать современную квартиру-студию, что и стало отправной точкой дизайна. . Нашей задачей было вместить в небольшое помещение кухню, спальню, гардеробную и ванную, но в то же время сохранить планировку квартиры-студии. . Главной героиней проекта стала ванная в зоне спальни. Идея поставить ванную в общей зоне родилась очень быстро и сразу была одобрена заказчиком. Мы так же как и наш заказчик часто путешествуем и интерьеры современных отелей вдохновили нас на такое не стандартное решение. . Цветовая палитра была продиктована самим стилем квартиры- это натуральные материалы: бетон, крашеный кирпич, дерево, стекло, метал. .
Год реализации: 2015
15 фотографий















