Московский 73
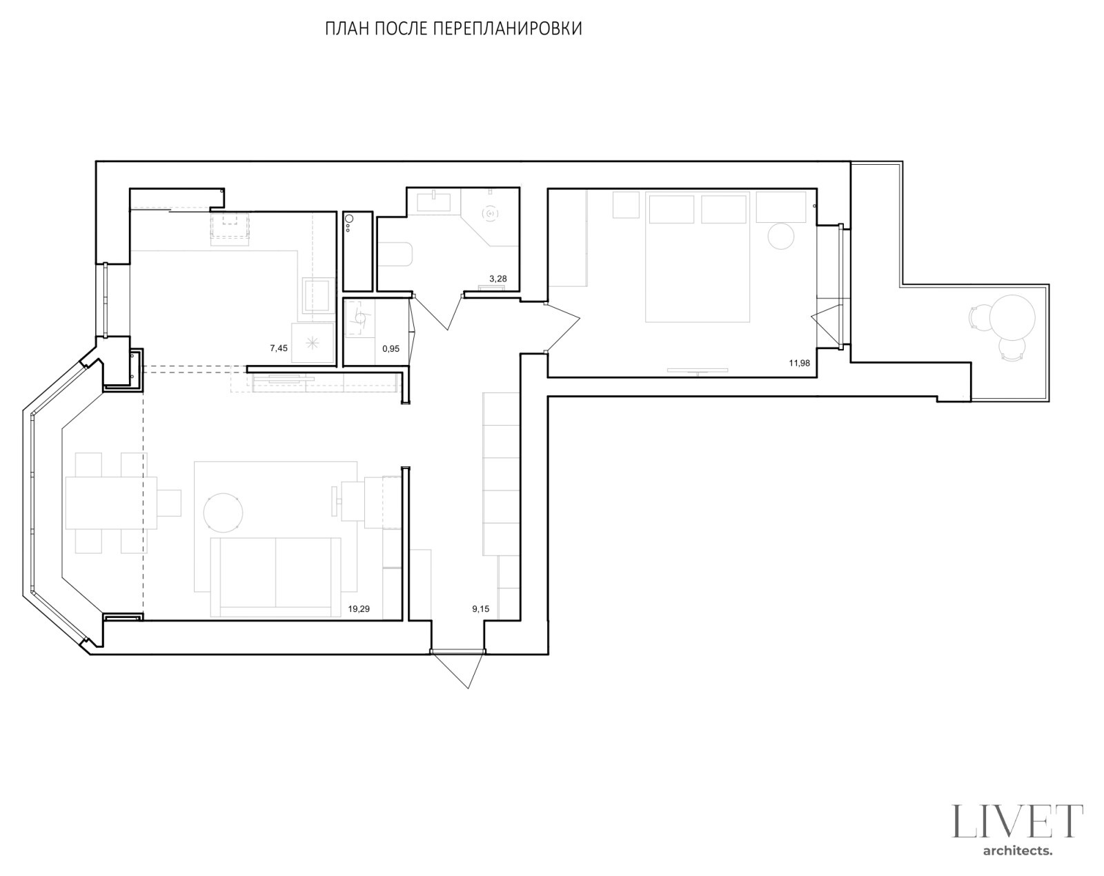
Адрес: г. Санкт-Петербург, Московский проспект, д.73 . Площадь: 53 м.кв. . Авторы: Дианова Ольга, Темербулатова Лилия . Стилист: Объетанова Любовь . Прораб: Зенов Станислав . Фотограф: Цыренщиков Дмитрий
Год реализации: 2021
г. Санкт-Петербург, 73 Московский проспект
15 фотографий















