logo

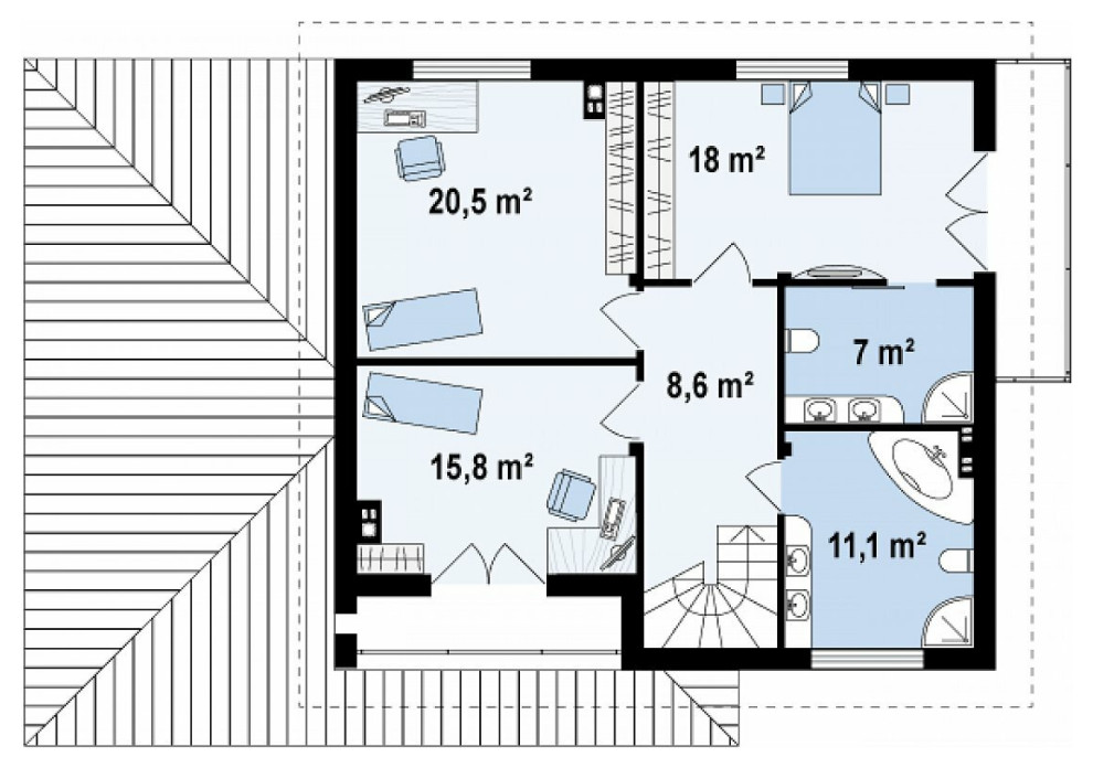
Монолитный дом, 206 кв.м.

Год реализации: 2023
г. Москва
photo

7 фотографий

Монолитный дом, 206 кв.м.
Монолитный дом, 206 кв.м.
Монолитный дом, 206 кв.м.
Монолитный дом, 206 кв.м.
Монолитный дом, 206 кв.м.
Монолитный дом, 206 кв.м.
Монолитный дом, 206 кв.м.
Монолитный дом, 206 кв.м.
Монолитный дом, 206 кв.м.
Монолитный дом, 206 кв.м.
Монолитный дом, 206 кв.м.
Монолитный дом, 206 кв.м.
Монолитный дом, 206 кв.м.
Монолитный дом, 206 кв.м.
Фоновое изображение профиля Геннадий Кашу
Фото профиля Геннадий Кашу

Геннадий Кашу

Проектирование и строительство

Контакты