logo

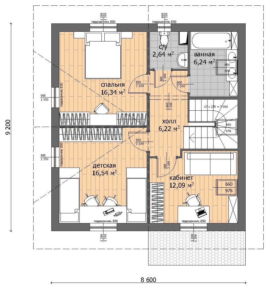
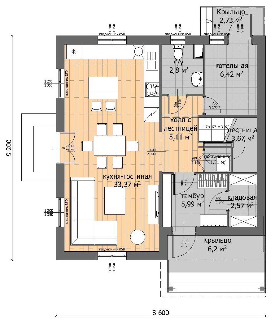
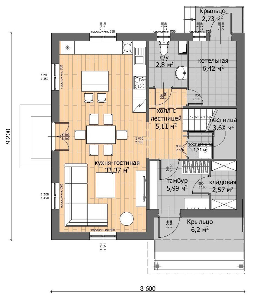
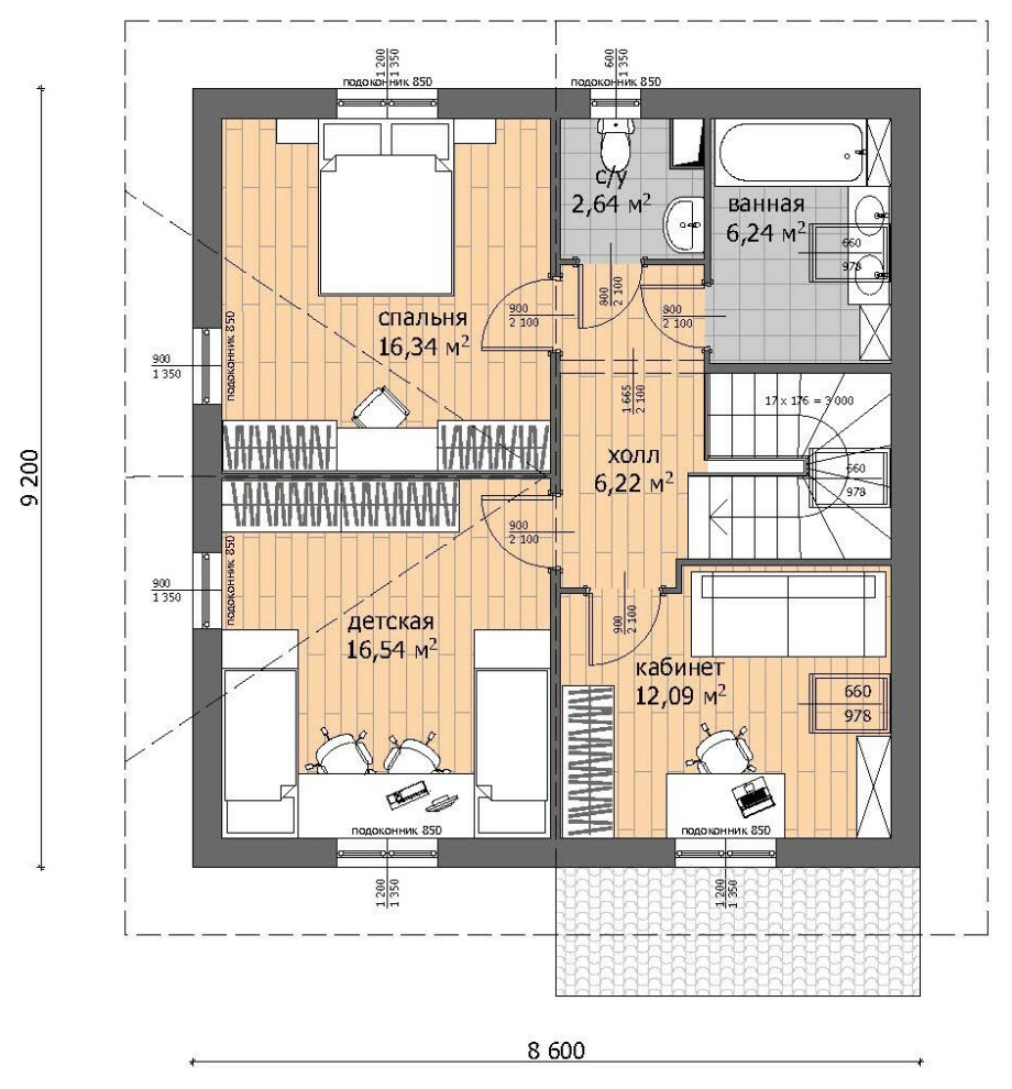
Каменный дом, 121 кв.м.

Год реализации: 2023
г. Москва
photo

5 фотографий

Каменный дом, 121 кв.м.
Каменный дом, 121 кв.м.
Каменный дом, 121 кв.м.
Каменный дом, 121 кв.м.
Каменный дом, 121 кв.м.
Каменный дом, 121 кв.м.
Каменный дом, 121 кв.м.
Каменный дом, 121 кв.м.
Каменный дом, 121 кв.м.
Каменный дом, 121 кв.м.
Фоновое изображение профиля Геннадий Кашу
Фото профиля Геннадий Кашу

Геннадий Кашу

Проектирование и строительство

Контакты