MODEL B
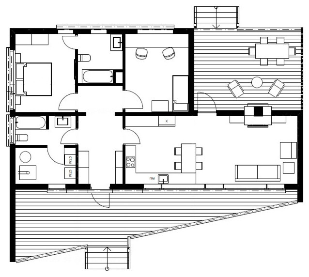
Особенностью дома является его уникальная форма и дизайн. На задней террасе предусмотрен камин, который добавляет изюминки в функционал дома. В доме предусмотрены 2 комнаты: . одна хозяйская с санузлом, что обеспечивает повышенный комфорт, и другая детская, куда поместится всё необходимое для ребёнка. Так же имеется общий санузел с ванной и отдельная . котельная, где с лёгкостью поместится постирочное оборудование. Попав в кухню-гостиную, Вы будете приятно удивлены простором и естественным освещением из окон. Это благоприятно . влияет на состояние человека и экономит электроэнергию за счёт того, что свет придётся включать, только после захода солнца. . Расположившись на задней террасе можно устроить романтический ужин, любуясь огнём в камине . и слушая приятное потрескивание дров. . . Площадь дома составляет 182 м2 . Габариты дома составляют 12,7х16 м .
5 фотографий






