MODEL A
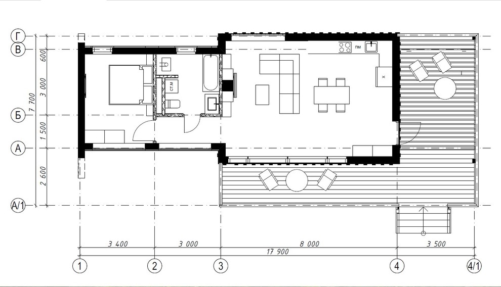
Небольшой уютный дом. Прекрасно подойдёт для молодой семьи, желающей вырваться на выходные из суетного города . и провести вечер на террасе в кругу близких друзей. Дом рассчитан на 2-3 человека. . Просторная и светлая кухня-гостиная не оставит равнодушными ценителей комфорта. . В санузле есть всё необходимое для комфортной жизни загородом. Спальня будет всегда наполнена естественным . освещением, благодаря расположению окон с двух сторон. Это благоприятно влияет на состояние здоровья человека. . Уютная терраса будет излюбленным местом для общения и посиделок за чашечкой чая. . . Площадь дома составляет 121,2 м2 . Габариты дома составляют 7,7х17,9 м .
Год реализации: 2016
Стоимость проектирования: 275 000 ₽
6 фотографий







