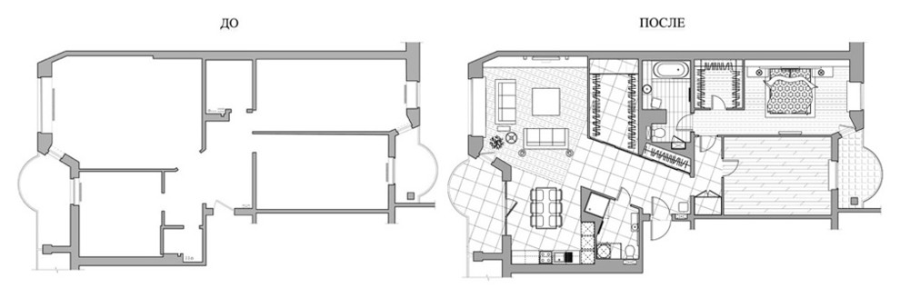
Минимализм без компромиссов
Данная квартира - тот редкий случай, когда заказчик, который просит "Минимализм", прекрасно себе представляет, чем является и какие ограничения накладывает на пользователя этот стиль.
Год реализации: 2015
7 фотографий
Данная квартира - тот редкий случай, когда заказчик, который просит "Минимализм", прекрасно себе представляет, чем является и какие ограничения накладывает на пользователя этот стиль.
7 фотографий
