
Дизайнеры интерьера
0
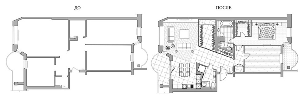
Минимализм без компромиссов
Квартира 100 метров в новом районе Санкт-Петербурга.
Другие фотографии в проекте
Вопросы к фото 0
Задайте вопрос
Вам ответят эксперты. Пришлем уведомление, когда вам ответят

Дизайнеры интерьера
0
Квартира 100 метров в новом районе Санкт-Петербурга.
Другие фотографии в проекте
Вам ответят эксперты. Пришлем уведомление, когда вам ответят