[mh022]
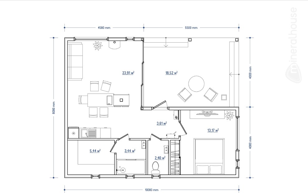
Проект летнего дома в Новосибирске. . Хамам, спальня, гостиная с барбекю и камином. . Общая площадь 57,53 м.кв.
Год реализации: 2015
6 фотографий
Проект летнего дома в Новосибирске. . Хамам, спальня, гостиная с барбекю и камином. . Общая площадь 57,53 м.кв.
6 фотографий
