Маленький Монмартр
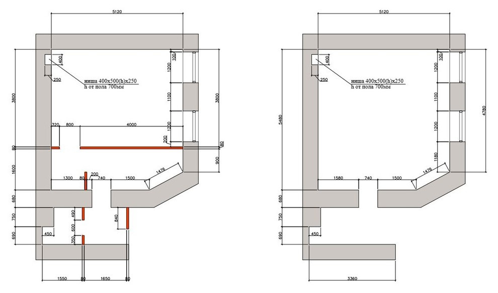
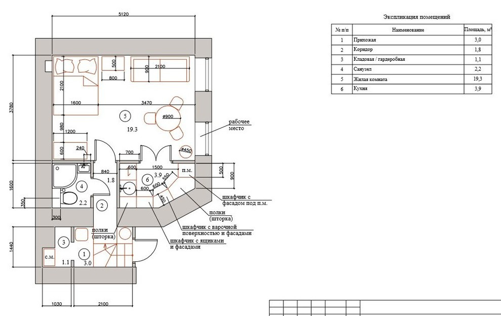
Проект представляет собой реконструкцию маленькой однокомнатной квартиры, по сути студии в самом центре Санкт-Петербурга, недалеко от Летнего сада на Гагаринской улице. При входе в саму квартиру ведет маленькая лестница на 4 ступеньки и потолки довольны низки для старого Петербурга,именно этот архитектурный нюанс натолкнул на идею стилизовать квартиру под парижскую мансарду в районе Монмартра . . . После работ по реконструкции лестницу пришлось изготовить заново, также было принято решение отделить кухню, спрятав ее за распашными двустворчатыми дверьми со стеклянными вставками, чтобы свет проникал и в это небольшое помещение. Если кухню нужно скрыть, достаточно затворить двери, а если наоборот хочется объединить, то створки можно широко распахнуть. Также был перенесен и расширен санузел, с удобным душевым уголком, выложенным каменной мозаикой. Рисунок настенной плитки повторяет рисунок классических обоев. Появилась мини прихожая с мини постирочной и гардеробной. Пол санузла, коридора и кухни выложен плиткой шахматкой такой типичной для европейских интерьеров, а в студии постелили натуральную массивную доску под маслом. . В студии расположилась кровать под тюлевым балдахином, который зонирует спальню ее от объединенной столовой и гостиной. . В гостиной располагается обычный деревянный круглый столик, который еще будет покрашен, стулья и диван, что позволяет и отдохнуть и поработать. Также один из широких сосновых подоконников вполне может служить рабочим местом если придвинуть к нему стул, розетки для светильника и ноутбука предусмотрены. В дань тому же Монмартру на окнах в старых антикварных супницах высажены фиалки. . Кухня оснащена всем самым необходимым: посудомоечной машиной, варочной поверхностью, холодильником, микроволновкой, духовки в проекте нет, так как заказчица от нее отказалась. Посуда хранится на открытых полках за шторками, а также в отреставрированном серванте в студии.Мягкий свет обеспечивают светодиодные споты расположенные на деревянных балках, хрустальная люстра над столом и бра у комода, который также служит туалетным столиком. . Квартира наполнена приятными сердцу милыми вещами: старые фарфоровые супницы и кувшины, настенные старинные тарелки Villeroy&Boch и Кузнецовский фарфор. рамки с репродукциями одного из самых знаменитых художников Монмартра Анри де Тулуз Лотрека. Надпись в изголовье говорит о том, что жизнь прекрасна, надо наслаждаться каждым ее мгновением и слушать свое сердце.
31 фотография































