Маленькие гардеробные. Выпуск 2.
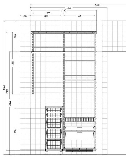
Еще пример онлайн-заказа маленькой (1200х 1500) гардеробной. Заказчик всё делал будучи в перелетах, согласовывалось все от wi-fi до wi-fi, в результате : вернувшись домой, у заказчика была уже оплаченная тоже онлайн гардеробная. спустя пару дней уже был монтаж.
Год реализации: 2017
г. Москва
12 фотографий













