Маленькая квартира на улице Радищевская, 44 кв.м.
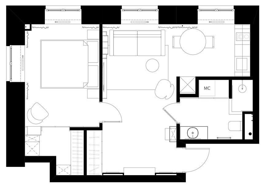
Небольшая двухкомнатная квартира с кухней-гостиной и объединенной прихожей. Мы всегда стараемся сохранить объем пространства и не перегружать маленькую площадь. Белые стены, яркие акценты, светлый пол из инженерной доски дуба - вот рецепт светлого и уютного интерьера от Однушечки. Дизайн проект отвечает всем запросам заказчика. Мы подходим к работе комплексно и реализуем все идеи в соответствии с визуализациями.
Год реализации: 2016
22 фотографии






















