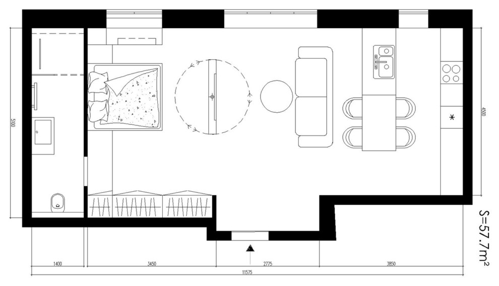
Профиль пользователяLoftГод реализации: 2014Стоимость проектирования: 275 000 ₽14 фотографийПоделиться проектомРасстановка мебелиСохранитьПоделитьсяВаннаяСохранитьПоделитьсяВаннаяСохранитьПоделитьсяСпальняСохранитьПоделитьсяСпальняСохранитьПоделитьсяСпальняСохранитьПоделитьсяСпальняСохранитьПоделитьсяСпальняСохранитьПоделитьсяСпальняСохранитьПоделитьсяСпальняСохранитьПоделитьсяГостинаяСохранитьПоделитьсяГостинаяСохранитьПоделитьсяКухня гостинаяСохранитьПоделитьсяКухня гостинаяСохранитьПоделиться