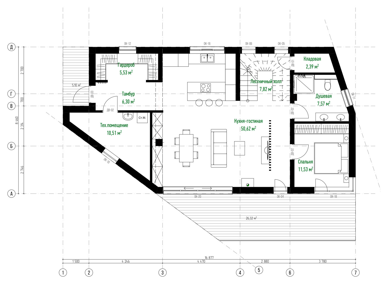
Профиль пользователяЛиверпульГод реализации: 2022Стоимость проектирования: 135 000 ₽г. Москва6 фотографийПоделитьсяСохранитьЛиверпуль 2 этажПоделитьсяСохранитьЛиверпуль 1этажПоделитьсяСохранитьЛиверпуль генеральный планПоделитьсяСохранитьЛиверпульПоделитьсяСохранитьЛиверпульПоделитьсяСохранитьЛиверпульПоделитьсяСохранить