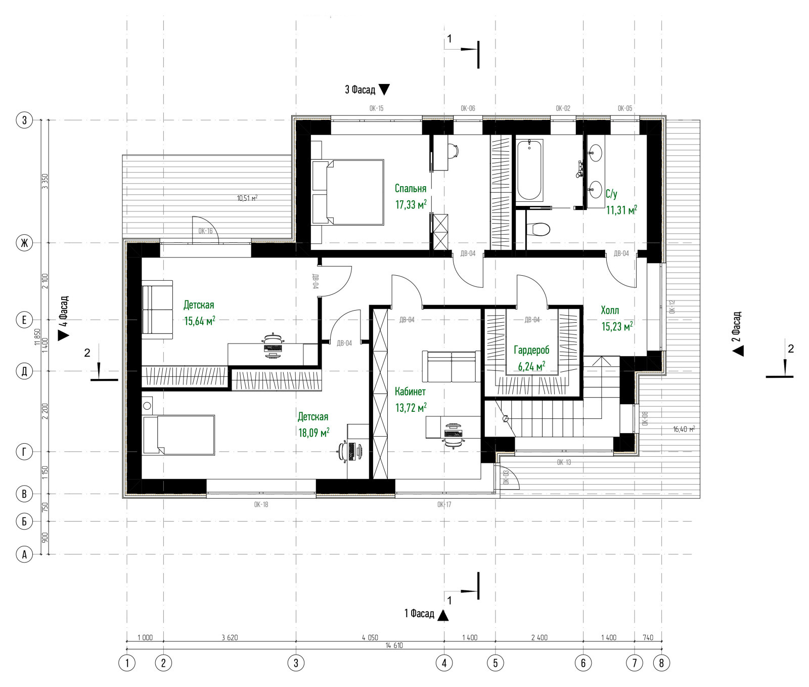
Профиль пользователяБернГод реализации: 2021Стоимость проектирования: 135 000 ₽6 фотографийПоделитьсяСохранитьБернПоделитьсяСохранитьБерн 2 этажПоделитьсяСохранитьБернПоделитьсяСохранитьБерн 1 этажПоделитьсяСохранитьБерн -1 этажПоделитьсяСохранитьБернПоделитьсяСохранить